Modernes Neubau Reiheneckhaus mit ca. 130 m² Wohnfläche, 4 Zimmern & Sonnenterrasse
Das von uns exklusiv angebotene Neubau Reiheneckhaus wird im Jahr 2023/2024 auf einem ca. 263,00 m² großen Grundstück in idealer Süd-/Westausrichtung in Alt-Finsing entstehen. Die angrenzenden Bebauungen bestehen überwiegend aus Einfamilienhäusern, Doppelhäusern und kleinen Mehrfamilienhäusern mit schön eingewachsenen Gärten.
Die Wohnlage ist als sehr gehoben und sehr ruhig zu bezeichnen.
Dieses einzigartige Reiheneckhaus verfügt über ein exzellentes Raumprogramm mit 4 Zimmern, 1 exklusiven Bad und über eine Wohnfläche von ca. 129,77 m².
Ihr zukünftiges Zuhause empfängt Sie mit einem ca. 8,37 m² großen und sehr hellen Eingangsbereich mit Garderobe. Von hier aus erschließen sich das ca. 2,24 m² große Gäste-WC mit Fenster und der ca. 47,12 m² große Wohn-/Ess-/Küchenbereich.
Dieser lichtdurchflutete Bereich stellt zugleich das Herzstück dieser wunderschönen Immobilie dar.
Dem Küchenbereich ist eine separate und ca. 2,96 m² große Speisekammer angegliedert. Vom Wohnbereich aus gelangt man durch zwei große Glastürelemente auf die ca. 16,76 m² große Südterrasse und in den schön gestalteten Garten.
Über eine gemauerte Treppe, mit Marmorbelag veredelt, gelangen Sie in das Obergeschoss des Hauses.
Das Obergeschoss besteht aus einem ca. 17,57 m² großen Elternschlafzimmer, zwei großen Kinderzimmern mit den Größen von ca. 14,87 m² und ca. 14,04 m², einem Flur und einem ca. 9,84 m² großen Tageslichtbad.
Das moderne Badezimmer verfügt über eine große Badewanne, eine begehbare Dusche, einen schönen Doppelwaschtisch und ein WC.
Ein großes Fenster sorgt auch hier für perfekte Lichtverhältnisse.
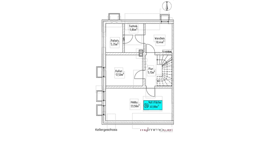
Im Untergeschoss des Hauses befinden sich der ca. 23,58 m² große Hobbyraum, der ca. 12,50 m² große Kellerraum, der ca. 8,44 m² große Wasch-und Trockenraum, der ca. 5,86 m² große Technikraum, der ca. 5,35 m² große Pelletsraum und der Flur.
Die Nutzfläche des Untergeschosses beträgt ca. 60,88 m².
Das gesamte Anwesen wird über eine hochmoderne und sehr energieeffiziente Pelletheizung versorgt und beheizt. Die Energieeffizienzklasse ist A. Der Primärenergiebedarf liegt bei 53,30 kWh/(m²*a).
Die Lichtverhältnisse in allen Wohnräumen werden aufgrund
großer Glastürelemente und großer Fenster als ideal zu bezeichnen sein.
Zwei oberirdische Stellplätze (je 20,00 € monatlich) komplettieren dieses einzigartige Angebot.
Hinweis: Haustiere sind nicht erlaubt!
Weitere Infos oder Details bitten wir in einem persönlichen
Gespräch mit uns abzuklären.
Gerne können Sie diese Immobilie vorab im Internet auf unserer Homepage www.myimmowert.com unter Angabe der Objekt-ID: 37003 besichtigen.
Für einen persönlichen Einzelbesichtigungstermin stehen wir Ihnen selbstverständlich sehr gerne zur Verfügung.
Herzliche Grüße Ihr Team von myimmowert
Grunddaten
Flächenangaben
Merkmale und Ausstattung
Ausstattung
- 36,5 cm Ziegelbauweise
- KFW-Effizienzklasse 55
- Energieträger Pelletheizung
- Video-Freisprechanlage mit elektrischem Türöffner
- Fenster Kunststoff-Alu
- Parkettböden im Schlafzimmer und in beiden Kinderzimmern
- Weichwasserenthärtungsanlage
- Dezentrale Lüftungsgeräte mit Wärmerückgewinnung
- Fußbodenheizung
- Handtuchheizkörper im Bad
- Elektrische Rollläden mit Zentralsteuerung
Lage
Die Gemeinde Finsing, im Landkreis Erding liegt geografisch zwischen Ismaning und Markt Schwaben, ist mit Busverbindungen zur Kreisstadt Erding und dem 5 km entfernten Markt Schwaben mit S-Bahn angebunden. Über die Flughafentangente sind die Autobahnen A94, A99 und A92 sehr gut erreichbar, die S-Bahn in Markt Schwaben ist 7 km entfernt und mit der Buslinie 568 mit öffentlichen Verkehrsmitteln erreichbar.
Zum näheren Umkreis zählen auch die Gemeinden Pliening, Poing und Kirchheim. Über 4000 Einwohner sind in den drei Ortsteilen Finsing, Neufinsing und Eicherloh zuhause. Viele Handwerks- und Handelsunternehmen und ein Gewerbegebiet stehen für örtliche Arbeitsplätze. Drei Kindergärten, die Grund- und Mittelschule mit Mittagsbetreuung übernehmen die Grundausbildung der Kinder. Gymnasien, Realschulen, M-Zweig und Montessorischule werden in Erding oder Markt Schwaben besucht. In der nahen Kreisstadt Erding werden auch BOS, FOS und Berufsschule angeboten.
Gesundheitszentrum, Betreutes Wohnen, Bäckerei, Metzgerei, Apotheke, Netto-Markt, Tankstellen und viele Dienstleister finden wir direkt im Ort. Die Lebens- und Liebenswürdigkeit der Gemeinde zeichnet sich durch ein hervorragendes Kultur- und Sportangebot aus.
Weitere Informationen über die Gemeinde Finsing erhalten Sie unter www.finsing.de.
85464 Finsing, Bayern, Deutschland. Die dargestellte Position der Immobilie ist nur eine ungefähre Angabe.
Sonstige Informationen
Wichtiger Hinweis:
Bitte haben Sie Verständnis, dass wir nur Anfragen mit angegebener Telefonnummer und vollständiger Adresse bearbeiten werden!
Unser umfangreiches Immobilienangebot finden Sie auf unserer Homepage www.myimmowert.com
Dies stellt nur eine Kurzbeschreibung des Objektes dar. Gerne senden wir Ihnen auf Anfrage ein ausführliches Exposé mit Grundrissplänen und Fotos zu.
Sämtliche Fotos, Texte und grafischen Darstellungen sind Eigentum der myimmowert GmbH & Co. KG und dürfen nicht von Dritten verwendet oder weitergegeben werden.









