Schöne 2-Zimmer-Dachgeschosswohnung mit ca. 54 m² Wfl., großem Balkon, Carport & Stellplatz
Zuhause im Herzen von Hallbergmoos!
Wer die zentrale Lage in grüner Umgebung genießen und dennoch schnell in die Münchner Innenstadt gelangen will, liegt mit einer Eigentumswohnung im Zentrum von Hallbergmoos genau richtig.
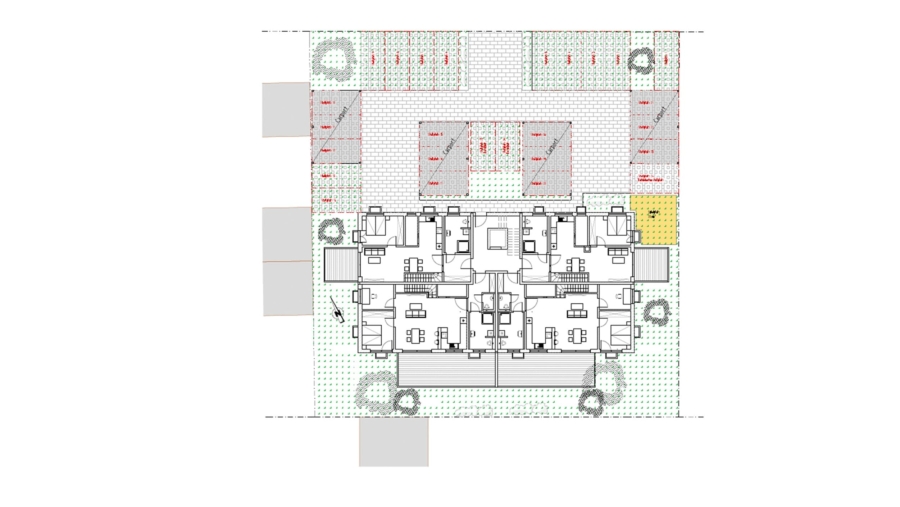
Das modern gestaltete Mehrfamilienhaus mit 12 Eigentumswohnungen, 12 Carports, 12 Außenstellplätzen und 2 Besucherparkplätzen wird in massiver und bester Ziegelbauweise erstellt.
Grunddaten des Mehrfamilienhauses:
- 2 und 3-Zimmer-Eigentumswohnungen
- Wohnungen 1+2+3+4 sind im Erdgeschoss barrierefrei
- Wohnungen 1+2+3+4 verfügen über schöne Gärten und große Souterrainbereiche
- Wohnungsgrößen von ca. 54,00 m² bis ca. 114,00 m²
- Große Balkone und Terrassen
- Personenaufzug über alle Etagen
- Ideale Süd-/Westausrichtung
- 36,5 cm Ziegelbauweise
- KFW-Effizienzklasse 55
- Hochwertige Pelletheizung
- Dezentrale Lüftungsanlage mit Wärmerückgewinnung
- Videogegensprechanlage
- Fenster Kunststoff-Alu
- Parkettböden in allen Wohnräumen
- Weichwasserenthärtungsanlage
- Fußbodenheizung
- Handtuchheizkörper in den Bädern
- Elektrische Rollläden
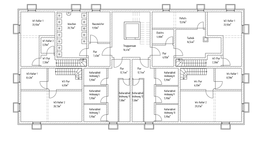
- Gemeinschaftlicher Wasch- und Trockenraum im Untergeschoss
Um für eine klimaneutrale Zukunft und kommende gesetzliche Anforderungen vorbereitet zu sein, wird das gesamte Gebäude mit modernster Wärmetechnik ausgestattet und erfüllt den KFW 55 Standard. Die energetische Ausstattung mit effektiver Gebäudeisolierung und einer effizienten Pelletheizung sorgen für gutes Klima und niedrige Energiekosten.
Zu dieser durchdacht gestalteten 2-Zimmer-Dachgeschosswohnung (Wohnung 10) gehört ein Carport und ein oberirdischer KFZ-Stellplatz sowie ein Kellerabteil.
Hinweis: KFW Darlehen für Käufer vorhanden, 100.000,-- EUR zu 2,8% p.a., Laufzeit 10 Jahre bis 30.12.2035.
Hinweis: Bei den Fotos im Exposé handelt es sich um ein bereits verwirklichtes Bauvorhaben der Baufirma. Die Fotos des Referenzobjektes dienen zur Veranschaulichung.
In einem persönlichen Gespräch erörtern wir all Ihre Fragen, die Ausstattungsmerkmale und weiteren Details zu Ihrer neuen Immobilie.
Gerne können Sie Ihr neues Zuhause auf unserer Homepage www.myimmowert.com unter Angabe der Objekt-ID: 12036 ausführlich besichtigen. Für einen persönlichen Einzelbesichtigungstermin vor Ort stehen wir Ihnen selbstverständlich sehr gerne zur Verfügung.
Herzliche Grüße Ihr Team von myimmowert
Grunddaten
Flächenangaben
Merkmale und Ausstattung
Kosten
Lage
Die Gemeinde Hallbergmoos liegt im Dreieck München-Freising-Erding in unmittelbarer Nähe zum Münchner Flughafen. Zum Zentrum der Landeshauptstadt München sind es ca. 25 km, zur Kreisstadt Freising ca. 12 km und nach Erding fährt man etwa 18 km. Zur Gemeinde gehören die Ortsteile Goldach, Birkeneck und Eching sowie einige Einödhöfe. Durch seine außerordentlich verkehrsgünstige Lage an der Autobahn A92 (München-Deggendorf) und der Bundesstraße B301, stellt Hallbergmoos für viele sich neu ansiedelnde Firmen einen idealen Standort und für deren Mitarbeiter ein ideales Wohnumfeld dar. In Hallbergmoos finden sich Einrichtungen für alle Altersstufen. Neben vielen Kindergärten gibt es Kinderbetreuungsmöglichkeiten schon für die Kleinsten, zwei modernen Horte, eine Grund- und eine Mittelschule. Weiterführende Schulen sind bequem mit dem Bus und der S-Bahn zu erreichen. Zahlreiche Einkaufmöglichkeiten sowie Banken, Ärzte oder mehrere Hotels runden das Bild einer ländlichen Gemeinde mit städtischem Charakter ab. Hallbergmoos liegt an der S-Bahnlinie München-Flughafen, Linie S8. Von der Münchener Innenstadt (Marienplatz) benötigen Sie ungefähr ca. 35 Minuten und vom Flughafen ca. 8 Minuten bis zum S-Bahnhof Hallbergmoos. Ein schöner Spielplatz in unmittelbarer Nähe zum Grundstück sorgt für sicheres Spielen unserer Kleinsten.
85399 Hallbergmoos, Bayern, Deutschland. Die dargestellte Position der Immobilie ist nur eine ungefähre Angabe.
Sonstige Informationen
Wichtige Hinweis & Besichtigungstermine:
Bitte haben Sie Verständnis, dass wir nur Anfragen mit angegebener Telefonnummer und vollständiger Adresse bearbeiten werden!
Erstbesichtigungstermine führen wir ausschließlich von Montag bis Freitag durch!
Aus Haftungsgründen sprechen wir bei den Besichtigungsterminen ausschließlich deutsch, sollten Sie der deutschen Sprache nicht ausreichend mächtig sein, bitten wir Sie Ihren Dolmetscher oder Übersetzer zum Besichtigungstermin mitzubringen.
Unser umfangreiches Immobilienangebot und unsere Öffnungszeiten finden Sie auf unserer Homepage www.myimmowert.com
Dies stellt nur eine Kurzbeschreibung des Objektes dar. Gerne senden wir Ihnen auf Anfrage ein ausführliches Exposé mit Grundrissplänen und Fotos zu.
Sämtliche Fotos, Texte und grafischen Darstellungen sind Eigentum der myimmowert GmbH & Co. KG und dürfen nicht von Dritten verwendet oder weitergegeben werden.









