Genial durchdachtes Zweifamilienhaus mit zwei 3-Zimmer-Wohnungen in 2. Reihe in sehr guter Wohnlage
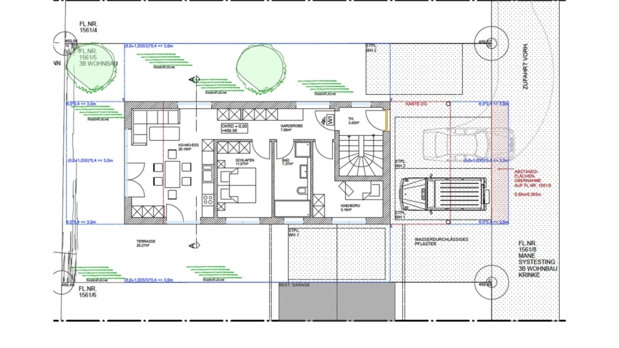
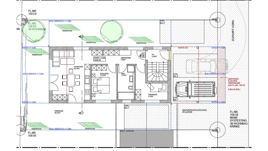
Das von uns exklusiv angebotene Zweifamilienhaus wird 2026 auf einem 324,00 m² großen Grundstück in idealer Süd-/Westausrichtung in einer sehr guten Wohnlage in zweiter Reihe in Erding entstehen.
Das in bester Ziegelbauweise erbaute Zweifamilienhaus verfügt über einen KFW 55 Standard.
Die angrenzenden Bebauungen bestehen überwiegend aus exklusiven Einfamilienhäusern, Doppelhäusern und kleinen Mehrfamilienhäusern mit schön eingewachsenen Gärten.
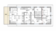
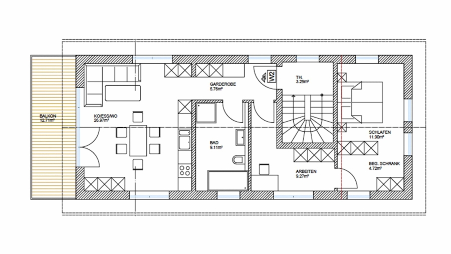
Das moderne Zweifamilienhaus verfügt über 2 Wohneinheiten mit einer Gesamtwohnfläche von ca. 145,87 m² und über ein exzellentes Raumprogramm, dass Sie den beigefügten Grundrissen entnehmen können.
Wohneinheit 1:
3-Zimmer-Gartenwohnung
Modernes Tageslichtbad
Wohnfläche ca. 73,26 m²
Nutzfläche ca. 32,18 m²
1 Carport
1 Oberirdischer KFZ-Stellplatz
Schöner Süd-/Westgarten
Große Süd-/Westterrasse
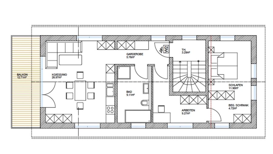
Wohneinheit 2:
3-Zimmer-Dachgeschosswohnung
Modernes Tageslichtbad
Wohnfläche ca. 72,61 m²
Nutzfläche ca. 28,05 m²
2 Oberirdische KFZ-Stellplätze
Großer Westbalkon
Zweifamilienhaus gesamt:
Grundstücksgröße: ca. 324,00 m²
Wohnfläche: ca. 145,87 m²
Nutzfläche: ca. 60,23 m²
Zimmer: 6
Tageslichtbäder: 2
Ausstattungsmerkmale & Details:
- Exklusive Tageslichtbäder
- KFW 55 Standard
- Hochmoderne und sehr energieeffiziente Luft-Wasser-Wärmepumpe
- Fußbodenheizung
- Hochwertige Kunststoff-Alufenster mit 3-fach Verglasung
- Hochwertigste Echtholzböden und Natursteinböden
- Duplex Weichwasseranlage BWT Aquaperla (Enthärtungsanlage)
Selbstverständlich können auf Ihren Wunsch hin beide Wohneinheiten perfekt zu einer Wohneinheit verschmolzen werden.
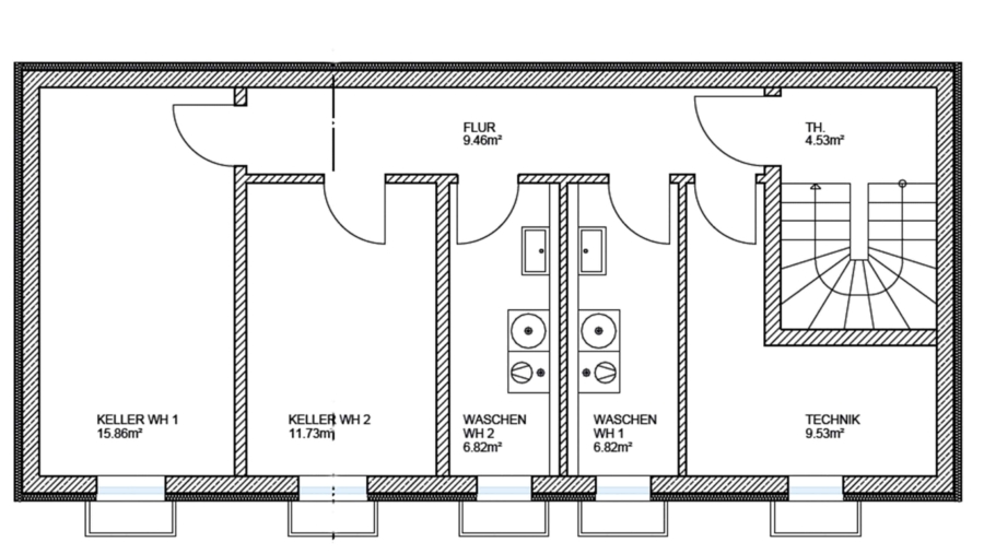
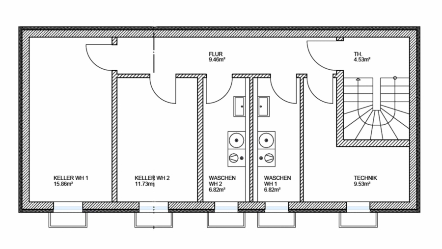
Das Untergeschoss gliedert sich auf in zwei große Kellerräume und zwei große Wasch-und Trockenräume sowie einen Technikraum.
Das gesamte Anwesen wird über eine hochmoderne und sehr energieeffiziente Luft-Wasser-Wärmepumpe versorgt und beheizt. Die Energieeffizienzklasse ist A+. Der Primärenergiebedarf liegt bei 17,50 kWh/(m²*a).
Die Lichtverhältnisse in allen Wohnräumen werden aufgrund großer Glastürelemente und großer Fenster als ideal zu bezeichnen sein.
Ein geräumiger Carport und 3 große Außenstellplätze komplettieren dieses einzigartige Angebot.
Nähere Infos oder Details bitten wir in einem persönlichen Gespräch mit uns abzuklären.
Gerne können Sie diese Immobilie vorab im Internet auf unserer Homepage www.myimmowert.com unter Angabe der Objekt-ID: 19015 besichtigen. Für einen persönlichen Einzelbesichtigungstermin stehen wir Ihnen selbstverständlich sehr gerne zur Verfügung.
Herzliche Grüße Ihr Team von myimmowert
Grunddaten
Flächenangaben
Merkmale und Ausstattung
Kosten
Lage
Erding ist altbayerische Herzogstadt, als Große Kreisstadt Zentrum eines prosperierenden Landkreises und damit so modern, wie eine Stadt, die zwischen der Landeshauptstadt München und dem Flughafen im Erdinger Moos liegt, nur sein kann. Dank der günstigen Lage im Münchener Umland ist Erding durch mehrere Verkehrsanbindungen zu erreichen: Zum einen über die A9 München-Nürnberg, die A92 München-Deggendorf und A 8 Salzburg-Stuttgart. Mit dem öffentlichen Personennahverkehr der Stadt München, dem Münchener Verkehrs- und Tarifverbund MVV, ist Erding mit der S-Bahnlinie S2 aus Richtung München-Ost in circa 40 Minuten zu erreichen. Ein zentraler Busbahnhof liegt am S-Bahnhof in Erding. Als Kreisstadt verfügt Erding über ein umfassendes Bildungsangebot und damit über Schultypen aller Ausrichtungen, den Schülerinnen und Schülern der Stadt steht jeder Bildungsweg offen. Im Herbst 2004 ist dieses umfassende Schulangebot durch ein zweites Gymnasium ergänzt worden. Natürlich gehören auch Berufs- und berufsbezogene Schulen, wie eine Wirtschaftshochschule, zum Bildungsstandort Erding. Alle Grundschulen in der Stadt bieten zudem eine Mittagsbetreuung an.
- Kindergarten: In wenigen Gehminuten zu erreichen.
85435 Erding, Bayern, Deutschland. Die dargestellte Position der Immobilie ist nur eine ungefähre Angabe.
Sonstige Informationen
Wichtige Hinweis & Besichtigungstermine:
Bitte haben Sie Verständnis, dass wir nur Anfragen mit angegebener Telefonnummer und vollständiger Adresse bearbeiten werden!
Erstbesichtigungstermine führen wir ausschließlich von Montag bis Freitag durch!
Aus Haftungsgründen sprechen wir bei den Besichtigungsterminen ausschließlich deutsch, sollten Sie der deutschen Sprache nicht ausreichend mächtig sein, bitten wir Sie Ihren Dolmetscher oder Übersetzer zum Besichtigungstermin mitzubringen.
Unser umfangreiches Immobilienangebot und unsere Öffnungszeiten finden Sie auf unserer Homepage www.myimmowert.com
Dies stellt nur eine Kurzbeschreibung des Objektes dar. Gerne senden wir Ihnen auf Anfrage ein ausführliches Exposé mit Grundrissplänen und Fotos zu.
Sämtliche Fotos, Texte und grafischen Darstellungen sind Eigentum der myimmowert GmbH & Co. KG und dürfen nicht von Dritten verwendet oder weitergegeben werden.









