Eine Perle im Herzen von Alt-Finsing! Edle Penthouse Wohnung mit 128 m² Wohnfläche & 2 große Balkone
In einer der schönsten Regionen Deutschlands, dem oberbayerischen Finsing, präsentiert sich diese lichtdurchflutete und sehr exklusive 5-Zimmer-Penthouse-Wohnung. Die Wohnung erstreckt sich über das gesamte Dachgeschoss eines kleinen und sehr modernen Mehrfamilienhauses mit nur 5 Wohneinheiten. Das Mehrfamilienhaus wird im Mai 2024 auf einem weitläufigen und sonnigen Grundstück im idyllischen Alt-Finsing fertiggestellt sein.
Der hervorragende Grundriss, die außergewöhnliche Lichtfülle, die hochwertige Ausstattung und die absolut ruhige Wohnlage prägen dieses Domizil.
Ein Lift führt Sie direkt in Ihr neues Zuhause.
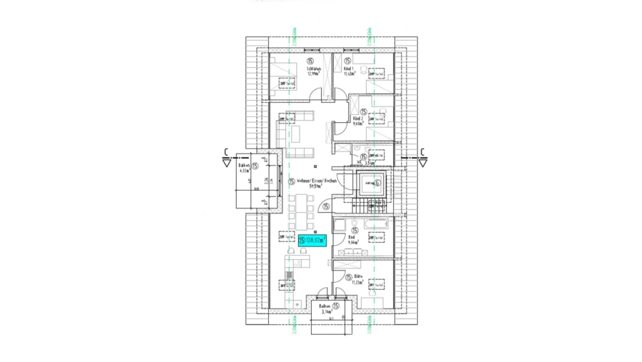
Ein weitläufiger und ca. 59,59 m² großer Wohn-/Essbereich mit angrenzender Küche, drei große Schlafzimmer, ein großes Arbeitszimmer, ein Gäste-WC, ein exklusives Tageslichtbad und ein wunderschön gestalteter Garderobenbereich bilden das Raumangebot.
Das Zentrum dieser einzigartigen Immobilie stellt der Wohn-Essbereich mit Küche dar, von diesem Bereich aus haben Sie Zugänge auf den ca. 12,04 m² großen Westbalkon und den ca. 7,52 m² großen Südbalkon. Ideale Plätze die Sonne bis in die späten Abendstunden genießen zu können.
Kennzahlen und Ausstattungsmerkmale im Überblick:
- 5 Zimmer
- 1 großes modernes Tageslichtbad
- 1 modernes Gäste-WC mit Fenster
- 2 große Balkone
- ca. 59,59 m² großer Wohn-/Ess-/Küchenbereich
- 36,5 cm Ziegelbauweise
- KFW-Effizienzklasse 55
- Energieträger Pelletheizung
- Lift mit direkten Zugang zur Wohnung
- Videogegensprechanlage
- Fenster Kunststoff-Alu
- Parkettböden in allen Wohnräumen
- Weichwasserenthärtungsanlage
- Dezentrale Lüftungsgeräte mit Wärmerückgewinnung
- Fußbodenheizung
- Handtuchheizkörper im Bad
- Elektrische Rollläden mit Zentralsteuerung
- Oberirdische Fahrradabstellplätze
- Gemeinsamer Fahrradkeller
- Besucherparkplätze
Das gesamte Anwesen wird über eine hochmoderne und sehr energieeffiziente Pelletheizung versorgt und beheizt. Die Energieeffizienzklasse ist A. Der Primärenergiebedarf liegt bei 48,3 kWh/(m²*a).
Die Lichtverhältnisse in allen Wohnräumen werden aufgrund großer Glastürelemente und großer Fenster als ideal zu bezeichnen sein.
Zwei geräumige Tiefgaragenstellplätze (Kaufpreis je Stellplatz 22.500,00 EUR) und ein großer Kellerraum komplettieren dieses einzigartige Angebot.
Weitere Infos oder Details bitten wir in einem persönlichen Gespräch mit uns abzuklären.
Hinweis: Einwohner der Gemeinde Finsing erhalten auf Wunsch die Durchfahrtsberechtigung der Privatstraße des BMW Testgeländes. So erreichen Sie in ca. 8-10 Fahrminuten Ismaning und die S-Bahnhaltestelle der Flughafenlinie S8, sowie den Münchner Norden.
Gerne können Sie diese Immobilie vorab im Internet auf unserer Homepage www.myimmowert.com unter Angabe der Objekt-ID: 15001 besichtigen.
Grunddaten
Flächenangaben
Merkmale und Ausstattung
Lage
Die Gemeinde Finsing, im Landkreis Erding liegt geografisch zwischen Ismaning und Markt Schwaben, ist mit Busverbindungen zur Kreisstadt Erding und dem 5 km entfernten Markt Schwaben mit S-Bahn angebunden. Über die Flughafentangente sind die Autobahnen A94, A99 und A92 sehr gut erreichbar, die S-Bahn in Markt Schwaben ist 7 km entfernt und mit der Buslinie 568 mit öffentlichen Verkehrsmitteln erreichbar.
Zum näheren Umkreis zählen auch die Gemeinden Pliening, Poing und Kirchheim. Über 4000 Einwohner sind in den drei Ortsteilen Finsing, Neufinsing und Eicherloh zuhause. Viele Handwerks- und Handelsunternehmen und ein Gewerbegebiet stehen für örtliche Arbeitsplätze. Drei Kindergärten, die Grund- und Mittelschule mit Mittagsbetreuung übernehmen die Grundausbildung der Kinder. Gymnasien, Realschulen, M-Zweig und Montessorischule werden in Erding oder Markt Schwaben besucht. In der nahen Kreisstadt Erding werden auch BOS, FOS und Berufsschule angeboten.
Gesundheitszentrum, Betreutes Wohnen, Bäckerei, Metzgerei, Apotheke, Netto-Markt, Tankstellen und viele Dienstleister finden wir direkt im Ort. Die Lebens- und Liebenswürdigkeit der Gemeinde zeichnet sich durch ein hervorragendes Kultur- und Sportangebot aus.
Weitere Informationen über die Gemeinde Finsing erhalten Sie unter www.finsing.de.
85464 Finsing, Bayern, Deutschland. Die dargestellte Position der Immobilie ist nur eine ungefähre Angabe.
Sonstige Informationen
Dies stellt nur eine Kurzbeschreibung des Objektes dar. Gerne senden wir Ihnen auf Anfrage ein ausführliches Exposé mit Grundrissplänen und Fotos zu.
Sämtliche Fotos, Texte und grafischen Darstellungen sind Eigentum der myimmowert GmbH & Co. KG und dürfen nicht von Dritten verwendet oder weitergegeben werden.
Bitte haben Sie Verständnis, dass wir nur Anfragen mit vollständig angegebener Adresse und Telefonnummer bearbeiten können!
Für einen persönlichen Einzelbesichtigungstermin stehen wir Ihnen selbstverständlich sehr gerne zur Verfügung.
Herzliche Grüße Ihr Team von myimmowert









