Absolute Rarität! Edle 3-Zimmer-Dachgeschosswohnung mit Luxusausstattung und großer Dachterrasse
Großzügigkeit, ein brillantes Raumkonzept und die elegant-luxuriöse Gestaltung prägen diese wunderschöne Immobilie. Die Räumlichkeiten erstrecken sich über das gesamte Dachgeschoss eines im Jahr 2019 von der Firma RS Wohnbau GmbH in bester Ziegelbauweise und in idealer Süd-/Westausrichtung erbauten Mehrfamilienhauses mit nur 5 Wohneinheiten.
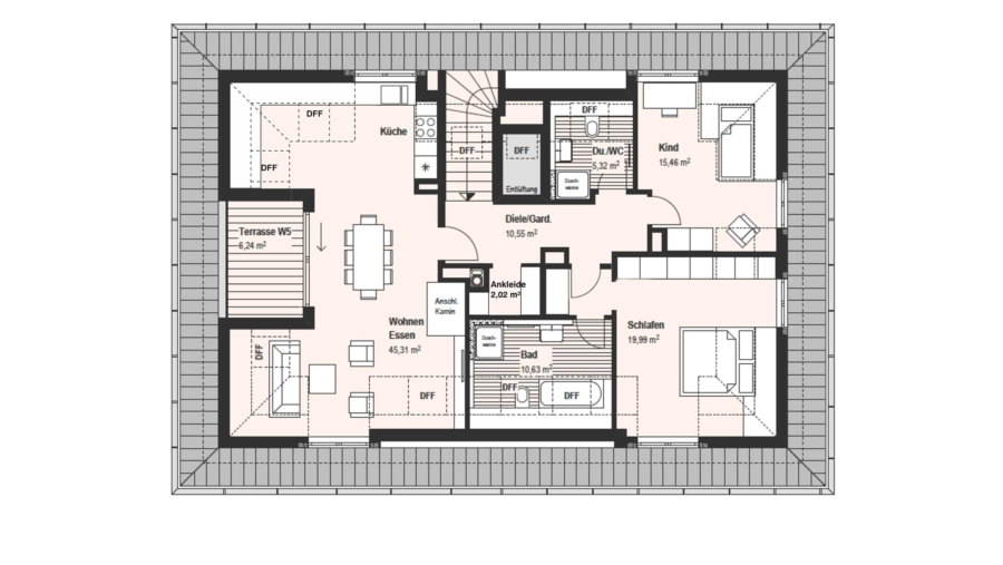
Der perfekt gegliederte Grundriss der Wohnung umfasst nach Angaben des Bauträgers ca. 88,00 m² Wohnfläche und die Nutzfläche beträgt ca. 118,60 m². Der repräsentative Eingangsbereich mit Garderobe befindet sich im 1. Obergeschoss. Eine in Holzoptik geflieste Treppe mit Stufenbeleuchtung führt Sie ins Dachgeschoss Ihres neuen Zuhauses.
Die ca. 10,55 m² große Diele mit Ankleidebereich und eingebauten Highboard bildet das Zentrum dieser Eigentumswohnung. Eine lichte Raumhöhe von ca. 2,85 Meter und in die Decke integrierte LED Spots sorgen hier für ein ganz besonderes Wohnflair. Von diesem Bereich aus erschließen sich der ca. 45,31 m² große Wohn-/Ess-und Küchenbereich, der ca. 30,62 m² große Elternbereich mit Schlafzimmer und Badezimmer, das ca. 15,46 m² große Kinderzimmer und das ca. 5,32 m² große Duschbad.
Eine traumhafte Erweiterung des Wohnens ist die ca. 6,24 m² große Süd-/Westdachterrasse, die einen herrlichen und unverbaubaren Blick ins Grüne bietet.
Der bereits oben erwähnte und lichtdurchflutete Wohn-/Ess-und Küchenbereich stellt das Herzstück dieser einzigartigen Dachgeschosswohnung dar. Eine Anschlussmöglichkeit für einen Kaminofen ist vorhanden. Der offen gestaltete Küchenbereich wurde optisch perfekt an den Wohn-/Essbereich angegliedert und mit einer exklusiven Markeneinbauküche ausgestattet.
Der Essbereich bietet Platz für einen großen Esstisch mit 8 Sitzplätzen und direktem Zugang auf die weitausladende Dachterrasse, der ideale Platz die Sonne bis in die späten Abendstunden genießen zu können. Eine elektrisch ausfahrbare Markise sorgt hier an heißen Sommertagen für angenehmen Schatten.
Der Wohnbereich ist auf Grund seiner Größe und seines Grundrisses optimal zu möblieren.
Das exklusive Badezimmer verfügt über eine große Badewanne, eine große begehbare Dusche, einen modernen Waschtisch, einen großen Spiegel mit integrierter Beleuchtung, einen Handtuchheizkörper, ein WC und über Anschlussmöglichkeiten für eine Waschmaschine. Zwei sehr große Dachflächenfenster sorgen auch hier für perfekte Lichtverhältnisse.
Das zweite Badezimmer dieser Eigentumswohnung wurde mit einer großen Dusche, einem Waschtisch, ein WC und einem großen Dachflächenfenster ausgestattet.
Das ca. 15,46 m² Kinderzimmer bietet auf Grund der Grundrissgestaltung und der Größe ideale Möglichkeiten zum Spielen.
Der bereits oben erwähnte Elternbereich ist durch eine Türe vom Rest der Wohnung zu separieren.
Im Schlafzimmer bieten zwei Maßeinbauschränke nicht nur genügend Stauraum, sondern sorgen auch optisch für ein Highlight.
Die Lichtverhältnisse in allen Wohnräumen sind aufgrund großer Glastürelemente, großer Fenster und großer Dachflächenfenster und der Pflegezustand der Wohnung sind als perfekt zu bezeichnen.
Das gesamte Anwesen wird über eine hochwertige und sehr energieeffiziente Zentralheizung (Fernwärme) versorgt und beheizt. Die Energieeffizienzklasse ist A. Der Primärenergiebedarf liegt bei 34,90 kWh/(m²*a).
Die gesamte Wohnung verfügt über eine Fußbodenheizung.
Im Untergeschoss dieses kleinen Mehrfamilienhauses befinden sich ein großer Wasch- und Trockenraum im Gemeinschaftseigentum. Der Wasch-und Trockenraum verfügt über ein Waschbecken und Anschlussmöglichkeiten für Waschmaschine und Trockner.
Ein geräumiger Tiefgaragenstellplatz (Kaufpreis 28.000,00 EUR) und ein ca. 6,39 m² großer Kellerraum komplettieren dieses einzigartige Angebot.
Grunddaten
Flächenangaben
Merkmale und Ausstattung
Ausstattung
Nähere Infos oder Details zur Ausstattung wie z.B. Smart Home, LED Spots, Einbaumöbel, elektrische Rollos, etc. bitten wir in einem persönlichen Gespräch mit uns abzuklären.
Gerne können Sie diese Immobilie vorab im Internet auf unserer Homepage www.myimmowert.com unter Angabe der Objekt-ID: 13060 besichtigen. Für einen persönlichen Einzelbesichtigungstermin stehen wir Ihnen selbstverständlich sehr gerne zur Verfügung.
Herzliche Grüße Ihr Team von myimmowert
Lage
Der nordwestlich des Zentrums der Landeshauptstadt München gelegene Stadtteil Untermenzing erfreut sich bei Jung und Alt aufgrund der hervorragenden Infrastruktur, der guten Verkehrsanbindung und des hohen Freizeitwertes größter Beliebtheit. Mit den öffentlichen Verkehrsmitteln, besonders die nur wenige Minuten entfernten S-Bahn-Stationen "Untermenzing" oder "Allach" ist die Innenstadt bequem zu erreichen. Die Bushaltestelle "Esmarchstraße" mit Ihren Linien 160 und 165 befindet sich in unmittelbarer Nähe. Mit dem Pkw ist das Zentrum in ca. 25 Fahrminuten erreichbar. Die Autobahn München-Stuttgart bzw. Salzburg (A8) ist mit dem Auto nur wenige Minuten entfernt. Durch die westliche Autobahnumgehung (A99) bis zur Lindauer Autobahn (A96) ist die Verkehrsanbindung nochmals verbessert. Vielseitige Einkaufsmöglichkeiten für den täglichen Bedarf sind in direkter Nähe ausreichend vorhanden, beispielsweise zwei Biomärkte, Super- und Drogeriemärkte, Bäckereien und Metzgereien. Grundschulen, eine Realschule, zahlreiche Gymnasien und ein Kindergarten befinden sich ebenfalls in unmittelbarer Nähe. Zur Freizeitgestaltung und als Naherholungsgebiet bieten sich der "Nymphenburger Schlosspark", der Würmzug, der Park von "Schloss Blutenburg", der "Botanische Garten" und eine Vielzahl von gemütlichen Biergärten an.
- Flughafen München: In ca. 29 Minuten mit dem Auto erreichbar.
80999 München, Bayern, Deutschland. Die dargestellte Position der Immobilie ist nur eine ungefähre Angabe.
Sonstige Informationen
Wichtige Hinweis & Besichtigungstermine:
Bitte haben Sie Verständnis, dass wir nur Anfragen mit angegebener Telefonnummer und vollständiger Adresse bearbeiten werden!
Erstbesichtigungstermine führen wir ausschließlich von Montag bis Freitag durch!
Aus Haftungsgründen sprechen wir bei den Besichtigungsterminen ausschließlich deutsch, sollten Sie der deutschen Sprache nicht ausreichend mächtig sein, bitten wir Sie Ihren Dolmetscher oder Übersetzer zum Besichtigungstermin mitzubringen.
Unser umfangreiches Immobilienangebot und unsere Öffnungszeiten finden Sie auf unserer Homepage www.myimmowert.com
Dies stellt nur eine Kurzbeschreibung des Objektes dar. Gerne senden wir Ihnen auf Anfrage ein ausführliches Exposé mit Grundrissplänen und Fotos zu.
Sämtliche Fotos, Texte und grafischen Darstellungen sind Eigentum der myimmowert GmbH & Co. KG und dürfen nicht von Dritten verwendet oder weitergegeben werden.









