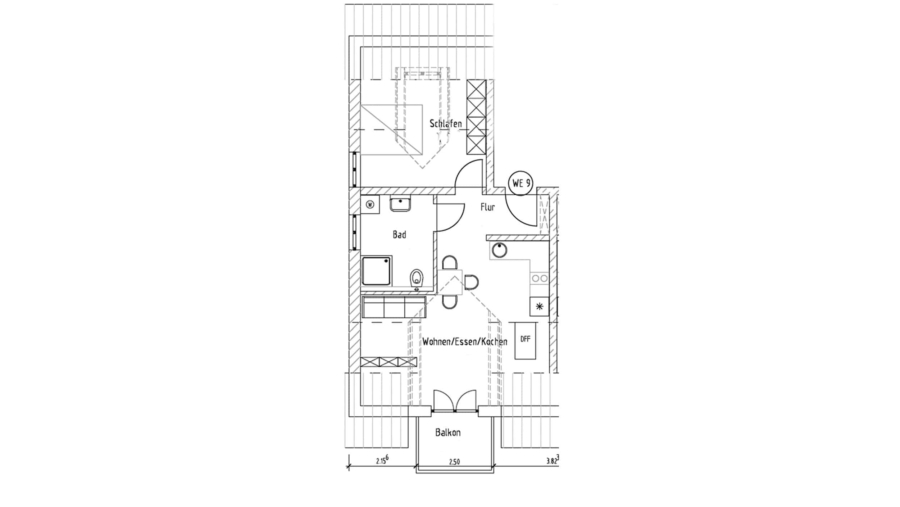
Sonnige 2-Zimmer-Dachgeschosswohnung mit ca.45 m² Wohnfläche, Südbalkon & geräumigen TG-Stellplatz
Zuhause im Herzen von Oberneuching!
Wer die zentrale Lage in grüner Umgebung genießen und dennoch schnell in die Münchner Innenstadt gelangen will, liegt mit einer Eigentumswohnung im Zentrum von Oberneuching genau richtig. Im Herzen Oberneuching gelegen, entsteht das Neubauvorhaben der Firma HasnWohnbau GmbH.
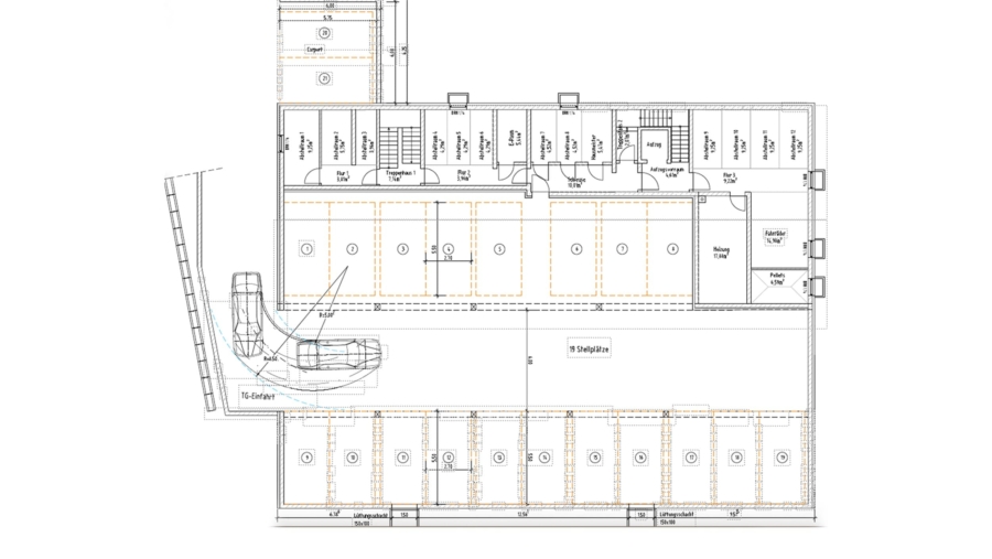
Das modern gestaltete Mehrfamilienhaus mit 12 Eigentumswohnungen und 21 Tiefgaragenstellplätzen sowie 7 Außenstellplätzen für Besucher wird in massiver und bester Ziegelbauweise erstellt.
Die individuelle Ausstattung bietet zeitgemäßen Wohnkomfort für Singles, Paare und Familien jedweden Alters. Mit nur 12 Wohneinheiten bleibt die Anlage überschaubar und persönlich.
Grunddaten:
- 2-Zimmer & 3-Zimmer-Eigentumswohnungen
- Wohnungsgrößen von ca. 45,00 m² bis ca. 90,00 m²
- Ideale Südausrichtung
- 36,5 cm Ziegelbauweise
- KFW-Effizienzklasse 40
- Energieträger Pelletheizung
- Dezentrale Lüftungsgeräte mit Wärmerückgewinnung
- Videogegensprechanlage
- Fenster Kunststoff-Alu
- Parkettböden in allen Wohnräumen
- Weichwasserenthärtungsanlage
- Fußbodenheizung
- Handtuchheizkörper in den Bädern
- Elektrische Rollläden mit Zentralsteuerung
- Oberirdische Fahrradstellplätze
- Gemeinsamer Fahrradkeller
- Besucherparkplätze
- Tiefgarage mit 21 TG-Stellplätzen
- 7 Besucherparkplätze
- EG-Wohnungen mit Privatgärten und Terrassen
Um für eine klimaneutrale Zukunft und kommende gesetzliche Anforderungen vorbereitet zu sein, wird das gesamte Gebäude mit modernster Wärmetechnik ausgestattet und erfüllt den KFW 40 Standard. Die energetische Ausstattung mit effektiver Gebäudeisolierung und einer effizienten Pelletheizung sorgen für gutes Klima und niedrige Energiekosten.
Zu dieser durchdacht gestalteten 2-Zimmer-Eigentumswohnung (Wohnung 9) gehört ein geräumiger TG-Stellplatz (Kaufpreis 22.000,00 EUR). Ein separates Kellerabteil im Untergeschoss ist im Kaufpreis enthalten.
In einem persönlichen Gespräch erörtern wir all Ihre Fragen, die Ausstattungsmerkmale und weiteren Details zu Ihrer neuen Immobilie.
Wir freuen uns auf Ihren Anruf! Gern können Sie Ihr neues Zuhause auf unserer Homepage www.myimmowert.com unter Angabe der Objekt-ID: 12017 ausführlich besichtigen. Für einen persönlichen Einzelbesichtigungstermin vor Ort stehen wir Ihnen selbstverständlich sehr gerne zur Verfügung.
Herzliche Grüße Ihr Team von myimmowert.
Grunddaten
Flächenangaben
Merkmale und Ausstattung
Lage
Die Verwaltungsgemeinschaft Oberneuching liegt süd-westlich der Kreisstadt Erding zwischen dem Flughafen München und der Messe Riem, Ismaning und Markt Schwaben. Der Ort ist durch eine eigene Auffahrt zur Flughafentangente sehr gut angebunden. Der Gemeindekindergarten St. Martin und die Grundschule befinden sich am Ort. Weiterführende Schulen, wie Mittelschulen, Gymnasien und Realschulen befinden sich in Erding, Markt Schwaben, Finsing und Oberding. Diese Schulen sind für Sie und Ihre Kinder sicher und bequem mit den Bussen zu erreichen. Der öffentliche Personennahverkehr wird durch die Buslinie 568 zwischen Erding und Markt Schwaben zur S-Bahn Linie S2 (Erding-MUC Marienplatz-Petershausen) angebunden. Die S-Bahn-Station St. Koloman ist von Ihrem neuen Zuhause in ca. 4 Minuten mit dem Auto erreichbar. Die S-Bahn bringt Sie nach Erding oder Markt Schwaben sowie in ca. 30 Minuten zum Münchner Marienplatz. Mit dem Auto erreichen Sie die Landeshauptstadt über die A94 in ca. 20 Minuten. Die neue Messe München sowie der Flughafen sind ebenfalls in ca. 20 Minuten Fahrzeit erreichbar. Zur Freizeitgestaltung lädt Sie das umliegende Naturschutzgebiet zu ausgedehnten und erholsamen Wander- und Fahrradtouren sowie die Herzogstadt Erding mit ihren zahlreichen Sport- und Freizeitanlagen ein (Stadtpark Erding, Therme Erding, Frei- und Hallenbad, Kronthaler Weiher, Eisstadion, etc.) ein.
85467 Neuching, Bayern, Deutschland. Die dargestellte Position der Immobilie ist nur eine ungefähre Angabe.
Sonstige Informationen
Wichtige Hinweis & Besichtigungstermine:
Bitte haben Sie Verständnis, dass wir nur Anfragen mit angegebener Telefonnummer und vollständiger Adresse bearbeiten werden!
Erstbesichtigungstermine führen wir ausschließlich von Montag bis Freitag durch!
Aus Haftungsgründen sprechen wir bei den Besichtigungsterminen ausschließlich deutsch, sollten Sie der deutschen Sprache nicht ausreichend mächtig sein, bitten wir Sie Ihren Dolmetscher oder Übersetzer zum Besichtigungstermin mitzubringen.
Unser umfangreiches Immobilienangebot und unsere Öffnungszeiten finden Sie auf unserer Homepage www.myimmowert.com
Dies stellt nur eine Kurzbeschreibung des Objektes dar. Gerne senden wir Ihnen auf Anfrage ein ausführliches Exposé mit Grundrissplänen und Fotos zu.
Sämtliche Fotos, Texte und grafischen Darstellungen sind Eigentum der myimmowert GmbH & Co. KG und dürfen nicht von Dritten verwendet oder weitergegeben werden.









