Top vermietete 4-Zimmer-Eigentumswohnung, Baujahr 2023 in sehr guter Wohnlage sucht Kapitalanleger
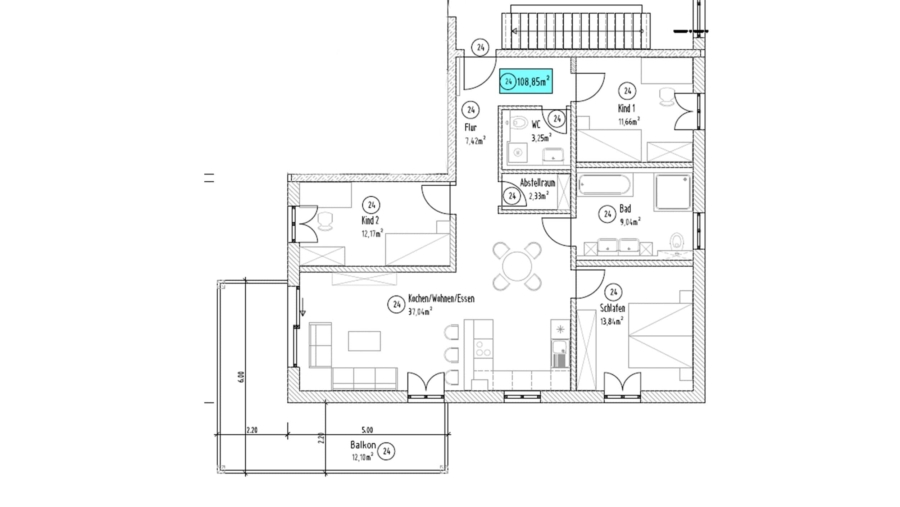
Die von uns exklusiv angebotene 4-Zimmer-Eigentumswohnung wurde 2023 in Erding-Langengeisling mit idealer Süd-Westausrichtung im 1. Obergeschoss eines modernen Mehrfamilienhauses mit 8 Wohneinheiten neu erbaut. Die angrenzenden Bebauungen bestehen überwiegend aus Einfamilienhäusern, Doppelhäusern und kleinen Mehrfamilienhäusern mit schön eingewachsenen Gärten. Das Wohnumfeld ist als sehr gut zu bezeichnen. Die angebotene Eigentumswohnung mit einer Wohnfläche von ca. 108,85 m² verfügt über ein exzellentes Raumprogramm, 4 schöne Zimmer, 1 Tageslichtbad, 1 separates Gäste-WC, hochwertige Böden, sowie einem Süd-West-Balkon mit real ca. 24 m².
Die Eigentumswohnung ist barrierefrei! Ein Personenlift über alle Etagen des Mehrfamilienhauses steht zur Verfügung. Die Lichtverhältnisse in allen Wohnräumen sind aufgrund großer Glastürelemente und großer Fenster als ideal zu bezeichnen. Das sehr solide gebaute gesamte Anwesen wird über eine hochmoderne und sehr energieeffiziente Pelletheizung autark versorgt und beheizt. Die Energieeffizienzklasse ist B und der Primärenergiebedarf liegt bei 56,20 kWh/(m.*a).
Zwei geräumige Tiefgaragenstellplätze und ein ca. 5,14 m² großer Kellerraum komplettieren dieses einzigartige Angebot.
Die Eigentumswohnung mit Erbbaurecht ist seit dem 1.11.2023 unbefristet perfekt vermietet und kann als Kapitalanlage sofort erworben werden. Erbbaurecht (Erbpacht) bedeutet, dass der Grund und Boden, auf dem die Immobilie errichtet wurde, nicht im anteiligen Eigentum der Wohnung ist, sondern das alleinige Nutzungsrecht am Boden auf 99 Jahre mit einem Erbbaurechtsvertrag gegen die monatliche Zahlung des Erbpachtzinses dem Wohnungseigentümer übertragen wurde. Dies hat für den Kapitalanleger erhebliche wirtschaftliche Vorteile. Zum Einen kann der Erbpachtzins selber steuerlich abgeschrieben werden, zum Anderen wird bei der Berechnung der Immobilien-Abschreibung der gesamte Immobilienwert angesetzt und nicht wie sonst üblich zuerst der anteilige, enthaltene Wert von Grund und Boden mit durchschnittlich ca. 35-45% des Immobilienwertes abgezogen – und nur der Rest kann abgeschrieben werden.
Die Vermietung: Die Eigentumswohnung ist seit dem 01.11.2023 unbefristet für 1.630,00 EUR Kaltmiete + 140,00 EUR für 2 TG-Stellplätze + Nebenkostenvorauszahlung vermietet!
Hinweis zur Erbpacht: Der monatliche Erbpachtzins für diese Immobilie inkl. der TG-Stellplätze beträgt 550,00 EUR.
Aus Diskretionsgründen wurde darauf verzichtet, Fotos vom Innenbereich der Immobilie zu veröffentlichen.
Weitere Infos oder Details bitten wir in einem persönlichen Gespräch mit uns abzuklären.
Gerne können Sie diese Immobilie vorab im Internet auf unserer Homepage www.myimmowert.com unter Angabe der Objekt-ID: 14018 besichtigen. Für einen persönlichen Einzelbesichtigungstermin stehen wir Ihnen selbstverständlich sehr gerne zur Verfügung.
Herzliche Grüße Ihr Team von myimmowert
Grunddaten
Flächenangaben
Merkmale und Ausstattung
Ausstattung
Ausstattungsmerkmale im Überblick:
- 36,5 cm Ziegelbauweise
- KFW-Effizienzklasse 55
- Energieträger Pelletheizung
- großer Süd-/Westbalkon
- Lift
- Videogegensprechanlage
- Fenster Kunststoff-Alu
- Überwiegend Fliesen in Holzdesign, Rest Parkett
- Weichwasserenthärtungsanlage
- Dezentrale Lüftungsgeräte mit Wärmerückgewinnung
- Fußbodenheizung
- Handtuchheizkörper in den Bädern
- Elektrische Rollläden mit Zentralsteuerung
- Oberirdische Fahrradabstellplätze
- Gemeinsamer Fahrradkeller
- Besucherparkplätze
Weitere Infos oder Details bitten wir in einem persönlichen Gespräch mit uns abzuklären.
Lage
Die Immobilie befindet sich in Erding im Stadtteil Langengeisling in ruhiger und beliebter Wohnlage. Die Innenstadt erreichen Sie mit dem Fahrrad in ca. 10 Minuten und fußläufig in ca. 20 Minuten. Hier finden Sie alles was zum täglichen Leben gehört – Ärztezentrum, Apotheken, Cafés, Restaurants u.v.m.. Kindertagesstätten, Kindergärten, Grund- und weiterführende Schulen sind ebenfalls in wenigen Minuten erreichbar. Das Freizeitangebot lässt ebenfalls keine Wünsche offen: Golfplätze, diverse Sportvereine, Kino, Stadtpark, Fitness etc.
Naherholungsgebiete, so auch Seen und die Alpen sind von Langengeisling aus in Kürze zu erreichen.
Erding liegt etwa 30 Kilometer in nordöstlicher Richtung vom Münchner Stadtzentrum entfernt und 31 Kilometer südwestlich von Landshut. Die Stadt liegt an der B388 München-Passau. Über die Flughafentangente Ost können die A 92 (München–Deggendorf) und A 94 (München–Passau) erreicht werden.
S-Bahn: Die S-Bahn-Station Erding Zentrum (S-Bahnlinie S2 Erding - München) ist in ca. 6 Fahrminuten mit dem PKW zu erreichen.
85435 Erding, Bayern, Deutschland. Die dargestellte Position der Immobilie ist nur eine ungefähre Angabe.
Sonstige Informationen
Wichtige Hinweis & Besichtigungstermine:
Bitte haben Sie Verständnis, dass wir nur Anfragen mit angegebener Telefonnummer und vollständiger Adresse bearbeiten werden!
Erstbesichtigungstermine führen wir ausschließlich von Montag bis Freitag durch!
Aus Haftungsgründen sprechen wir bei den Besichtigungsterminen ausschließlich deutsch, sollten Sie der deutschen Sprache nicht ausreichend mächtig sein, bitten wir Sie Ihren Dolmetscher oder Übersetzer zum Besichtigungstermin mitzubringen.
Unser umfangreiches Immobilienangebot und unsere Öffnungszeiten finden Sie auf unserer Homepage www.myimmowert.com
Dies stellt nur eine Kurzbeschreibung des Objektes dar. Gerne senden wir Ihnen auf Anfrage ein ausführliches Exposé mit Grundrissplänen und Fotos zu.
Sämtliche Fotos, Texte und grafischen Darstellungen sind Eigentum der myimmowert GmbH & Co. KG und dürfen nicht von Dritten verwendet oder weitergegeben werden.









