Moderne 2-Zimmer-Wohnung mit ca. 60 m² Wohnfläche, großem Südbalkon & geräumigen TG-Stellplatz
Hinweis: Unsere Auftraggeber wünschen keine Anfragen von Haustierbesitzern und Rauchern!
Die von uns exklusiv angebotene 2-Zimmer-Wohnung befindet sich in einer ruhigen Wohnlage im Herzen von Oberneuching.
Das neu errichtete Mehrfamilienhaus wurde 2025/2026 in bester und massiver Ziegelbauweise erbaut.
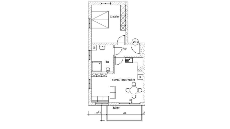
Die Wohnung befindet sich im 1. Obergeschoss des Hauses und wird an den zukünftigen Mieter zum Erstbezug übergeben. Ihr neues Zuhause empfängt Sie mit einem ca. 4,51 m² großen Eingangsbereich mit Garderobe. Von diesem Bereich aus erschließen sich der ca. 26,45 m² große Wohn-/Ess-und Küchenbereich, das ca. 17,83 m² große Schlafzimmer und das ca. 7,62 m² große Tageslichtbad. Das modern geflieste Badezimmer verfügt über eine große begehbare Dusche, eine Badewanne, ein großes Waschbecken, ein WC und ein großes Fenster.
Vom Wohn-/Ess-und Küchenbereich aus haben Sie direkten Zugang auf den ca. 8,12 m² großen und weitausladenden Südbalkon.
Die Lichtverhältnisse dieser Immobilie und die Grundrissgestaltung sind als sehr gut zu bezeichnen.
Um für eine klimaneutrale Zukunft und kommende gesetzliche Anforderungen vorbereitet zu sein, wurde das gesamte Gebäude mit modernster Wärmetechnik ausgestattet und erfüllt den KFW 40 Standard. Die energetische Ausstattung mit effektiver Gebäudeisolierung und einer effizienten Pelletheizung sorgen für gutes Klima und niedrige Energiekosten.
Zu dieser durchdacht gestalteten 2-Zimmer-Wohnung gehört ein geräumiger TG-Stellplatz (Mietpreis 60,00 EUR monatlich). Ein ca. 4,29 m² großes Kellerabteil im Untergeschoss ist im Mietpreis enthalten.
Im Untergeschoss befindet sich der Wasch- und Trockenraum, welcher die Anschlussmöglichkeit für Waschmaschine und Trockner bietet.
Besucherparkplätze befinden sich vor dem Haus.
Hinweis: Im beigefügten Grundriss ist nur die Dusche gezeichnet, der Eigentümer hat zusätzlich zur Dusche eine Badewanne installiert.
In einem persönlichen Gespräch erörtern wir all Ihre Fragen, die Ausstattungsmerkmale und weiteren Details zu Ihrer neuen Wohnung.
Wir freuen uns auf Ihren Anruf! Gern können Sie Ihr neues Zuhause auf unserer Homepage www.myimmowert.com unter Angabe der Objekt-ID: 32003 ausführlich besichtigen. Für einen persönlichen Einzelbesichtigungstermin vor Ort stehen wir Ihnen selbstverständlich sehr gerne zur Verfügung.
Herzliche Grüße Ihr Team von myimmowert.
Grunddaten
Flächenangaben
Merkmale und Ausstattung
Kosten
Lage
Die Verwaltungsgemeinschaft Oberneuching liegt süd-westlich der Kreisstadt Erding zwischen dem Flughafen München und der Messe Riem, Ismaning und Markt Schwaben. Der Ort ist durch eine eigene Auffahrt zur Flughafentangente sehr gut angebunden. Der Gemeindekindergarten St. Martin und die Grundschule befinden sich am Ort. Weiterführende Schulen, wie Mittelschulen, Gymnasien und Realschulen befinden sich in Erding, Markt Schwaben, Finsing und Oberding. Diese Schulen sind für Sie und Ihre Kinder sicher und bequem mit den Bussen zu erreichen. Der öffentliche Personennahverkehr wird durch die Buslinie 568 zwischen Erding und Markt Schwaben zur S-Bahn Linie S2 (Erding-MUC Marienplatz-Petershausen) angebunden. Die S-Bahn-Station St. Koloman ist von Ihrem neuen Zuhause in ca. 4 Minuten mit dem Auto erreichbar. Die S-Bahn bringt Sie nach Erding oder Markt Schwaben sowie in ca. 30 Minuten zum Münchner Marienplatz. Mit dem Auto erreichen Sie die Landeshauptstadt über die A94 in ca. 20 Minuten. Die neue Messe München sowie der Flughafen sind ebenfalls in ca. 20 Minuten Fahrzeit erreichbar. Zur Freizeitgestaltung lädt Sie das umliegende Naturschutzgebiet zu ausgedehnten und erholsamen Wander- und Fahrradtouren sowie die Herzogstadt Erding mit ihren zahlreichen Sport- und Freizeitanlagen ein (Stadtpark Erding, Therme Erding, Frei- und Hallenbad, Kronthaler Weiher, Eisstadion, etc.) ein.
- Kindergarten: Gemeindekindergarten St. Martin am Ort
85467 Neuching, Bayern, Deutschland. Die dargestellte Position der Immobilie ist nur eine ungefähre Angabe.
Sonstige Informationen
Wichtige Hinweis & Besichtigungstermine:
Bitte haben Sie Verständnis, dass wir nur Anfragen mit angegebener Telefonnummer und vollständiger Adresse bearbeiten werden!
Erstbesichtigungstermine führen wir ausschließlich von Montag bis Freitag durch!
Aus Haftungsgründen sprechen wir bei den Besichtigungsterminen ausschließlich deutsch, sollten Sie der deutschen Sprache nicht ausreichend mächtig sein, bitten wir Sie Ihren Dolmetscher oder Übersetzer zum Besichtigungstermin mitzubringen.
Unser umfangreiches Immobilienangebot und unsere Öffnungszeiten finden Sie auf unserer Homepage www.myimmowert.com
Dies stellt nur eine Kurzbeschreibung des Objektes dar. Gerne senden wir Ihnen auf Anfrage ein ausführliches Exposé mit Grundrissplänen und Fotos zu.
Sämtliche Fotos, Texte und grafischen Darstellungen sind Eigentum der myimmowert GmbH & Co. KG und dürfen nicht von Dritten verwendet oder weitergegeben werden.









