Im Herzen von Wörth! Baugrundstück für ein großzügiges Einfamilienhaus
Das von uns exklusiv angebotene Baugrundstück ist erschlossen und befindet sich in einer sehr guten Wohnlage im Herzen von Wörth. 
Die Bebauung kann mit einem großzügigen Einfamilienhaus erfolgen, der entsprechende Vorbescheid wurde bereits beim Landratsamt Erding gestellt. Der positive Bescheid wird in Kürze erwartet. 
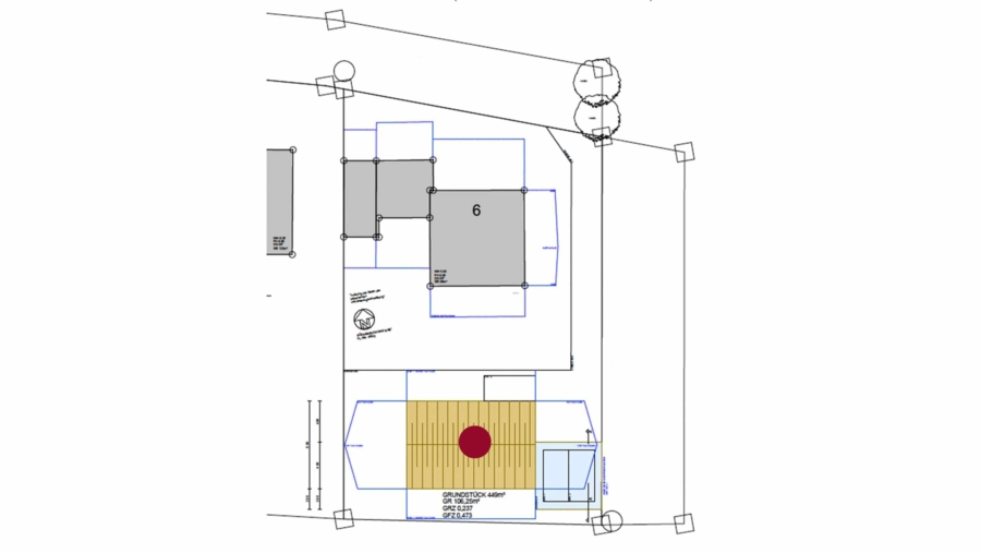
Das Grundstück ist ideal nach Süden ausgerichtet und verfügt über eine Grundstücksgröße von ca. 444,00 m².
Der Grundstückszuschnitt ist als optimal zu bezeichnen.
Für eine Bebauung ist die Bebauungsrichtlinie § 34 BauGB maßgebend.
Die wesentlichen Punkte des Baurechts sind:
Bebauung: Einfamilienhaus
Mögliche Wohnfläche: ca. 175,00 m²
Mögliche Nutzfläche Haus: ca. 80,00 m²
Mögliche Nutzfläche Garage: ca. 36,00 m²
Maße des Baukörpers: ca. 12,50 m x ca. 8,50 m
Anzahl der Vollgeschosse: 2
GR: 106,25 m² 
GRZ: 0,237
GFZ: 0,473
Dachform: Satteldach
Doppelgarage: möglich
Doppelcarport: möglich
Zusätzlicher Stellplatz: 1 
Stellplätze gesamt: 3
Das Grundstück ist ohne Altbestand und in Kürze zu bebauen.
Alle Details zum Thema Baurecht, Erschließung, etc. können Sie gerne in einem persönlichen Gespräch mit uns erfahren.
Nähere Informationen zu diesem Baugrundstück erhalten Sie auf unserer Homepage www.myimmowert.com unter Angabe der Objekt-ID: 20034. Für einen persönlichen Einzelbesichtigungstermin vor Ort stehen wir Ihnen selbstverständlich sehr gerne zur Verfügung.
Herzliche Grüße Ihr Team von myimmowert.
Grunddaten
Flächenangaben
Lage
Die Gemeinde Wörth befindet sich im Landkreis Erding. Die Gemeinde Wörth mit ihren Nachbarorten Breitötting und Sonnendorf sind begehrte Wohnorte, ca. 5 km südlich von Erding gelegen. Die S-Bahn-Station St. Koloman ist von Ihrem neuen Zuhause in ca. 3 Minuten mit dem Auto erreichbar. Die S-Bahn bringt Sie in ca. 10 Minuten nach Erding oder Markt Schwaben sowie in ca. 37 Minuten zum Münchner Marienplatz. Mit dem Auto erreichen Sie die Landeshauptstadt über die A94 in ca. 25 Minuten. Die neue Messe München sowie der Flughafen sind ebenfalls in ca. 17 Minuten Fahrzeit zu erreichen. Einen Kindergarten, Grund- und Hauptschule finden Sie in Wörth, alle weiterführenden Schulen befinden sich in Erding sowie in Markt Schwaben, wohin regelmäßige Busverbindungen bestehen. Im benachbarten Ort Wörth können Sie Einkäufe für den täglichen Bedarf in einem kleinen Laden erledigen, weitere umfangreiche Einkaufsmöglichkeiten finden Sie in Erding sowie in Markt Schwaben. Ärztliche Betreuung sowie Apotheken sind ebenfalls in wenigen Fahrminuten erreichbar. Zur Freizeitgestaltung laden Sie das umliegende Landschaftsschutzgebiet Sempt/Schwillachtal zu ausgedehnten und erholsamen Wander- und Fahrradtouren sowie die Herzogstadt Erding mit Ihren zahlreichen Sport- und Freizeitanlagen ein (Therme Erding, Frei- und Hallenbad, Kronthaler Weiher, Eisstadion etc. um nur einige zu nennen).
85457 Wörth, Bayern, Deutschland. Die dargestellte Position der Immobilie ist nur eine ungefähre Angabe.






Sonstige Informationen
Wichtiger Hinweis:
Bitte haben Sie Verständnis, dass wir nur Anfragen mit angegebener Telefonnummer und vollständiger Adresse bearbeiten werden!
Unser umfangreiches Immobilienangebot finden Sie auf unserer Homepage www.myimmowert.com
Dies stellt nur eine Kurzbeschreibung des Objektes dar. Gerne senden wir Ihnen auf Anfrage ein ausführliches Exposé mit Grundrissplänen und Fotos zu.
Sämtliche Fotos, Texte und grafischen Darstellungen sind Eigentum der myimmowert GmbH & Co. KG und dürfen nicht von Dritten verwendet oder weitergegeben werden.

 
                 
                 
                 
                 
 
 
 
		 
    









