Moderne Doppelhaushälfte mit ca. 151,70 m² Wohnfläche, 5 Zimmern & 2 exklusiven Tageslichtbädern!
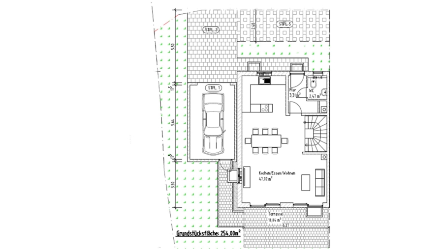
Die von uns exklusiv angebotene Doppelhaushälfte wird im Jahr 2025 auf einem ca. 254,00 m² großen Grundstück in idealer Südausrichtung im Zentrum von Notzing entstehen. Die angrenzenden Bebauungen bestehen überwiegend aus Einfamilienhäusern, Doppelhäusern und kleinen Mehrfamilienhäusern mit schön eingewachsenen Gärten.
Die Wohnlage ist als sehr gehoben und sehr ruhig zu bezeichnen.
Diese moderne Doppelhaushälfte verfügt über ein exzellentes Raumprogramm mit 5 Zimmern, 2 exklusiven Bädern und über eine Wohnfläche von ca. 151,70 m².
Ihr zukünftiges Zuhause empfängt Sie mit einem ca. 3,31 m² großen und hellen Eingangsbereich mit Garderobe. Von hier aus erschließen sich das ca. 2,47 m² große Gäste-WC mit Fenster und der ca. 47,02 m² große Wohn-/Ess-/Küchenbereich. Dieser lichtdurchflutete Bereich stellt zugleich das Herzstück dieser wunderschönen Immobilie dar.
Hier finden eine große Einbauküche mit freistehendem Küchenblock, ein großer Esstisch mit ca. 6-8 Sitzplätzen und ein großer Couchbereich ihren Platz. Ein optimal in den Raum integrierter Kamin bietet Ihnen Anschlussmöglichkeit für einen Kaminofen oder Kachelofen. Vom Wohnbereich aus gelangt man durch zwei große Glastürelemente auf die ca. 18,84 m² große Süd-/Westterrasse und in den schön gestalteten Garten.
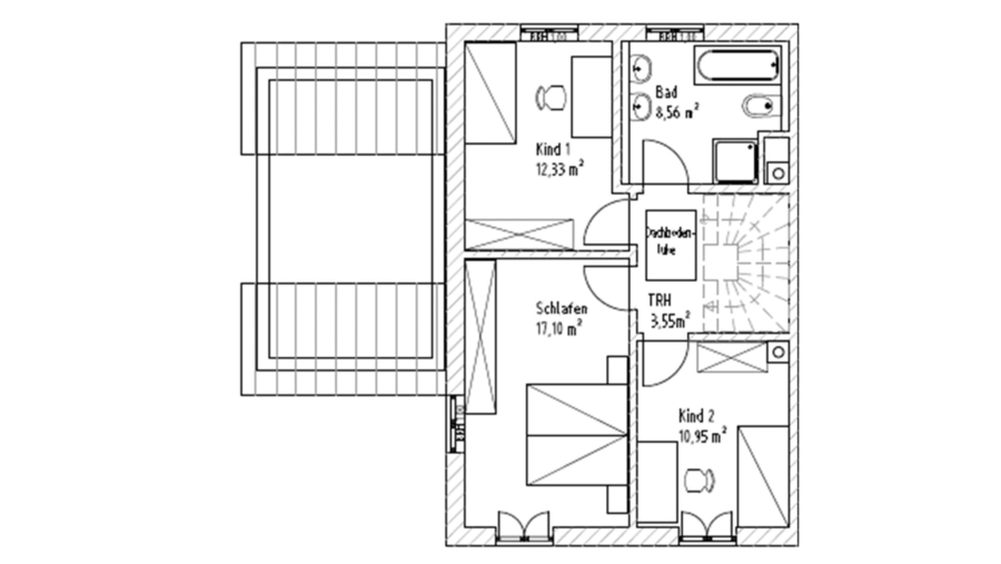
Über eine gemauerte Treppe, mit Echtholzbelag veredelt, gelangen Sie in das Obergeschoss und in das Dachgeschoss des Hauses.
Das Obergeschoss besteht aus einem ca. 17,10 m² großen Elternschlafzimmer, zwei großen Kinderzimmern mit den Größen von 12,33 m² und ca. 10,95 m², einem Flur und einem ca. 8,56 m² großen Tageslichtbad. Das exklusive Badezimmer verfügt über eine große Badewanne, eine begehbare Dusche, einen schönen Doppelwaschtisch und ein WC. Ein großes Fenster sorgt auch hier für perfekte Lichtverhältnisse.
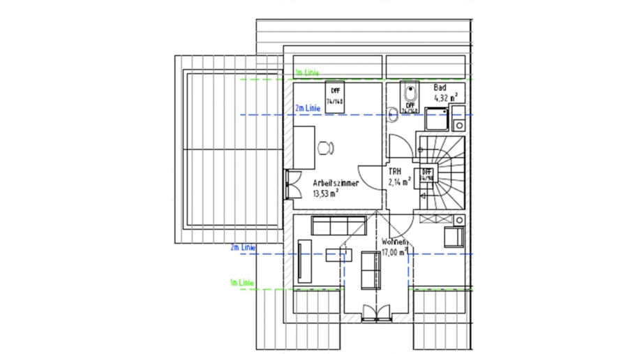
Das Dachgeschoss besteht aus einem ca. 17,00 m² großen Studio, einem ca. 13,53 m² großen Arbeitszimmer und einem ca. 4,32 m² großen Tageslichtbad. Das moderne Badezimmer verfügt über eine begehbare Dusche, einen hochwertigen Waschtisch und ein WC. Ein großes Dachflächenfenster sorgt auch hier für viel Licht.
Eine Raumhöhe von ca. 4,50 Meter im Firstbereich verleihen dieser Wohnebene ein ganz besonderes Wohnflair.
Im Untergeschoss des Hauses befinden sich der ca. 23,11 m² große Hobbyraum, der ca. 8,70 m² große Kellerraum, der ca. 12,22 m² große Wasch-/Heizung- und Technikraum und das ca. 4,74 m² Pelletlager. Die Nutzfläche des Untergeschosses beträgt ca. 52,32 m².
Das gesamte Anwesen wird über eine hochmoderne und sehr energieeffiziente Pelletheizung versorgt und beheizt. Die Energieeffizienzklasse ist A. Der Primärenergiebedarf liegt bei 36,20 kWh/(m²*a).
Die Lichtverhältnisse in allen Wohnräumen werden aufgrund großer Glastürelemente und großer Fenster als ideal zu bezeichnen sein.
Eine geräumige Einzelgarage mit Satteldach (Kaufpreis 25.000,00 EUR) und zwei KFZ-Stellplätze komplettieren dieses einzigartige Angebot.
Ausstattungsmerkmale im Überblick:
- 36,5 cm Ziegelbauweise
- KFW-Effizienzhaus 40
- Energieträger Pelletheizung
- Videogegensprechanlage
- Fenster Kunststoff-Alu
- Parkettböden in allen Wohnräumen
- Weichwasserenthärtungsanlage
- Dezentrale Lüftungsanlage mit Wärmerückgewinnung
- Fußbodenheizung
- Handtuchheizkörper in den Bädern
- Elektrische Rollläden mit Zentralsteuerung
- Großzügige Elektroausstattung
- Weitausladende Südterrasse
- Hochwertiger Garten mit moderner Einzäunung
- Vorbereitung für Photovoltaikanlage
- Vorbereitung für E-Ladestation
Weitere Infos oder Details bitten wir in einem persönlichen Gespräch mit uns abzuklären.
Grunddaten
Flächenangaben
Merkmale und Ausstattung
Kosten
Ausstattung
Gerne können Sie diese Immobilie vorab im Internet auf unserer Homepage www.myimmowert.com unter Angabe der Objekt-ID: 17034 besichtigen.
Für einen persönlichen Einzelbesichtigungstermin stehen wir Ihnen selbstverständlich sehr gerne zur Verfügung.
Lage
Die Gemeinde Oberding im Landkreis Erding besitzt einen ganz besonders charmanten Charakter. Etwa 30 Kilometer vor den Toren der Landeshauptstadt München, kurz vor dem Weltbekannten Münchner Flughafen, schafft es der beschauliche Ort Notzing eine perfekte Symbiose aus ruhigem und noch beschaulichen Dorfleben und gleichzeitig die Nähe zu den Städten Erding und Freising, sowie der Münchner Landeshauptstadt, herzustellen.
Die Gemeinde mit Ihren rund 6000 Einwohnern bietet die optimale Infrastruktur für alle Altersgruppen. Eine umfangreiche Auswahl an Einkaufsmöglichkeiten finden Sie in wenigen Autominuten im Erdinger Gewerbegebiet. Hier finden Sie alles was das Shopping- Herz höher schlagen lässt. Ein riesiges Angebot an Einkaufsmöglichkeiten mit mehreren Discountern, Bau- und Gartenfachmärkten, eine Vielzahl von Restaurants, sind hier unkompliziert erreichbar.
85445 Oberding, Bayern, Deutschland. Die dargestellte Position der Immobilie ist nur eine ungefähre Angabe.
Sonstige Informationen
Wichtiger Hinweis:
Bitte haben Sie Verständnis, dass wir nur Anfragen mit angegebener Telefonnummer und vollständiger Adresse bearbeiten werden!
Unser umfangreiches Immobilienangebot finden Sie auf unserer Homepage www.myimmowert.com
Dies stellt nur eine Kurzbeschreibung des Objektes dar. Gerne senden wir Ihnen auf Anfrage ein ausführliches Exposé mit Grundrissplänen und Fotos zu.
Sämtliche Fotos, Texte und grafischen Darstellungen sind Eigentum der myimmowert GmbH & Co. KG und dürfen nicht von Dritten verwendet oder weitergegeben werden.










