Traumhaus auf Erbpacht! Modernes, hochwertiges Reihenmittelhaus (KFW 55) frei zur Eigennutzung
Das von uns exklusiv angebotene Reihenmittelhaus wurde 2023 in Erding-Langengeisling mit idealer Westausrichtung innerhalb einer kleinen Wohnanlage neu erbaut. Die angrenzenden Bebauungen bestehen überwiegend aus Einfamilienhäusern, Doppelhäusern und kleinen Mehrfamilienhäusern mit schön eingewachsenen Gärten. Das Wohnumfeld ist als sehr gut zu bezeichnen.
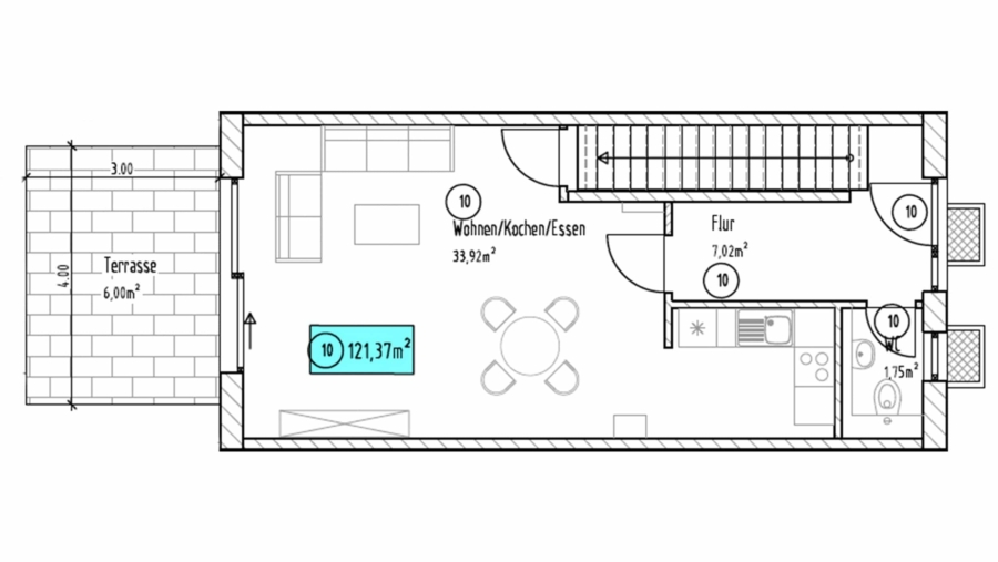
Die angebotene Immobilie mit einer Wohnfläche von ca. 121,37 m² verfügt über ein exzellentes Raumprogramm, 4 schöne Zimmer, 2 Bäder, 1 separates Gäste-WC, hochwertige Parkett- und Fliesenböden, Fußbodenheizung, elektrische Rollos an allen Fenstern, einer West-Terrasse mit real ca. 12 m² und Garten, sowie einem direkten Zugang zur Tiefgarage.
Das Reihenmittelhaus ist ebenerdig erreichbar.
Die Lichtverhältnisse in allen Wohnräumen sind aufgrund großer Glastürelemente und großer Fenster als ideal zu bezeichnen. Die sehr solide gebaute gesamte Wohnanlage wird über eine hochmoderne und sehr energieeffiziente Pelletheizung autark versorgt und beheizt. Die Energieeffizienzklasse ist B und der Primärenergiebedarf liegt bei 53,40 kWh/(m.*a).
Zwei Tiefgaragenstellplätze direkt hinter der Kellertüre komplettieren dieses einzigartige Angebot.
Erbbaurecht (Erbpacht) bedeutet, dass der Grund und Boden, auf dem die gesamte Wohnanlage neu errichtet wurde, nicht im anteiligen Eigentum der Immobilie ist, sondern das alleinige Nutzungsrecht am anteiligen Boden mit dem Erbbaurechtsvertrag vom 07.04.2022 auf 99 Jahre gegen die monatliche Zahlung eines Erbpachtzinses dem Immobilieneigentümer übertragen wird. In der praktischen Nutzung des Grundstücks mit ca. 130 m² gibt es keinen Unterschied zu einer Realteilung. Lediglich der Kaufpreis ist um den gesamten Grundstückswert niedriger als bei einer Realteilung.
Hinweis zur Erbpacht: Der monatliche Erbpachtzins für diese
Immobilie inkl. der 2 TG-Stellplätze beträgt 612,50 EUR.
Die Immobilie war kurzzeitig vermietet und steht jetzt frisch gestrichen, frei und absolut neuwertig zur Verfügung. Sie wird Ihnen sofort nach der Kaufpreiszahlung übergeben.
Der angegebene Wert des Hausgeldes beinhaltet auch die üblichen Verbrauchskosten wie Warmwasser und Heizung und kann daher durch Ihre neue Nutzung variieren.
Gerne stehen wir Ihnen zur Beantwortung aller weiteren Fragen zur Verfügung.
Sie können auch diese Immobilie vorab im Internet auf unserer Homepage www.myimmowert.com unter Angabe der Objekt-ID: 16021 besichtigen.
Für einen persönlichen Einzelbesichtigungstermin stehen wir Ihnen selbstverständlich sehr gerne zur Verfügung.
Auch bei der Finanzierung sind wir Ihnen gerne behilflich.
Herzliche Grüße Ihr Team von myimmowert
Grunddaten
Flächenangaben
Merkmale und Ausstattung
Ausstattung
Ausstattungsmerkmale im Überblick:
- 36,5 cm Ziegelbauweise
- KFW-Effizienzklasse 55
- Energieträger Pelletheizung
- Videogegensprechanlage
- Fenster Kunststoff-Alu
- Überwiegend Fliesen in Holzdesign, Rest Parkett
- Weichwasserenthärtungsanlage
- Dezentrale Lüftungsgeräte mit Wärmerückgewinnung
- Fußbodenheizung
- Handtuchheizkörper in den Bädern
- Elektrische Rollläden mit Zentralsteuerung
- Oberirdische Fahrradabstellplätze
- Gemeinsamer Fahrradkeller
- Besucherparkplätze
Weitere Infos oder Details bitten wir in einem persönlichen Gespräch mit uns abzuklären.
Lage
Die Immobilie befindet sich in Erding im Stadtteil Langengeisling in ruhiger und beliebter Wohnlage. Die Innenstadt erreichen Sie mit dem Fahrrad in ca. 10 Minuten und fußläufig in ca. 20 Minuten. Hier finden Sie alles was zum täglichen Leben gehört – Ärztezentrum, Apotheken, Cafés, Restaurants u.v.m.. Kindertagesstätten, Kindergärten, Grund- und weiterführende Schulen sind ebenfalls in wenigen Minuten erreichbar. Das Freizeitangebot lässt ebenfalls keine Wünsche offen: Golfplätze, diverse Sportvereine, Kino, Stadtpark, Fitness etc.
Naherholungsgebiete, so auch Seen und die Alpen sind von Langengeisling aus in Kürze zu erreichen.
Erding liegt etwa 30 Kilometer in nordöstlicher Richtung vom Münchner Stadtzentrum entfernt und 31 Kilometer südwestlich von Landshut. Die Stadt liegt an der B388 München-Passau. Über die Flughafentangente Ost können die A 92 (München–Deggendorf) und A 94 (München–Passau) erreicht werden.
S-Bahn: Die S-Bahn-Station Erding Zentrum (S-Bahnlinie S2 Erding - München) ist in ca. 6 Fahrminuten mit dem PKW zu erreichen.
85435 Erding, Bayern, Deutschland. Die dargestellte Position der Immobilie ist nur eine ungefähre Angabe.
Sonstige Informationen
Wichtige Hinweis & Besichtigungstermine:
Bitte haben Sie Verständnis, dass wir nur Anfragen mit angegebener Telefonnummer und vollständiger Adresse bearbeiten werden!
Erstbesichtigungstermine führen wir ausschließlich von Montag bis Freitag durch!
Aus Haftungsgründen sprechen wir bei den Besichtigungsterminen ausschließlich deutsch, sollten Sie der deutschen Sprache nicht ausreichend mächtig sein, bitten wir Sie Ihren Dolmetscher oder Übersetzer zum Besichtigungstermin mitzubringen.
Unser umfangreiches Immobilienangebot und unsere Öffnungszeiten finden Sie auf unserer Homepage www.myimmowert.com
Dies stellt nur eine Kurzbeschreibung des Objektes dar. Gerne senden wir Ihnen auf Anfrage ein ausführliches Exposé mit Grundrissplänen und Fotos zu.
Sämtliche Fotos, Texte und grafischen Darstellungen sind Eigentum der myimmowert GmbH & Co. KG und dürfen nicht von Dritten verwendet oder weitergegeben werden.









