Platz für die ganze Familie! Modernes Reihenmittelhaus mit Südgarten, 2 Bädern und 2 Stellplätzen
Das von uns exklusiv angebotene Reihenmittelhaus wird im Jahr 2025/2026 auf einem ca. 127,00 m² großen Grundstück in idealer Südausrichtung im Zentrum von Markt Schwaben entstehen. Die angrenzenden Bebauungen bestehen überwiegend aus Einfamilienhäusern, Doppelhäusern und Mehrfamilienhäusern mit schön eingewachsenen Gärten.
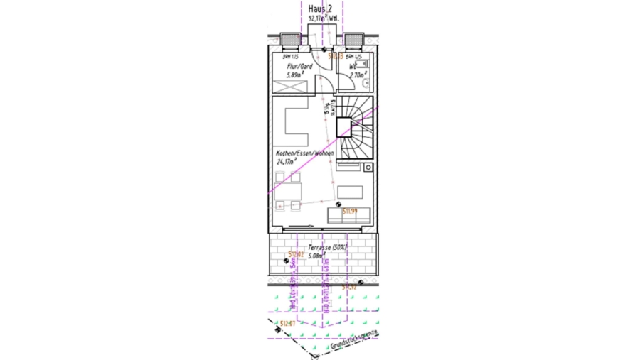
Dieses moderne Reihenmittelhaus verfügt über ein sehr gutes Raumprogramm mit 4 Zimmern, 2 modernen Bädern und über eine Wohnfläche von ca. 92,17 m².
Ihr zukünftiges Zuhause empfängt Sie mit einem ca. 5,89 m² großen und hellen Eingangsbereich mit Garderobe. Von hier aus erschließen sich das ca. 2,70 m² große Gäste-WC mit Fenster und der ca. 24,17 m² große Wohn-/Ess-/Küchenbereich. Dieser lichtdurchflutete Bereich stellt zugleich das Herzstück dieser wunderschönen Immobilie dar. Hier finden eine große Einbauküche mit freistehendem Küchenblock, ein großer Esstisch und ein großer Couchbereich ihren Platz. Ein optimal in den Raum integrierter Kamin bietet Ihnen Anschlussmöglichkeit für einen Kaminofen. Vom Wohnbereich aus gelangt man durch eine große Glasschiebetüre auf die ca. 10,16 m² große Südterrasse und in den schönen Südgarten.
Über eine gemauerte Treppe, mit Echtholzbelag veredelt, gelangen Sie in das Obergeschoss und in das Dachgeschoss des Hauses.
Das Obergeschoss besteht aus zwei Kinderzimmern mit den Größen von 13,99 m² und ca. 9,68 m², einem Flur und einem ca. 4,50 m² großen Badezimmer. Das Badezimmer verfügt über eine begehbare Dusche, ein Waschbecken und ein WC.
Das Dachgeschoss besteht aus einem ca. 16,64 m² großen Elternschlafzimmer und einem ca. 6,23 m² großen Tageslichtbad. Das moderne Badezimmer verfügt über eine begehbare Dusche, eine große Badewanne, ein Waschbecken und ein WC. Ein großes Fenster sorgt hier für viel Licht.
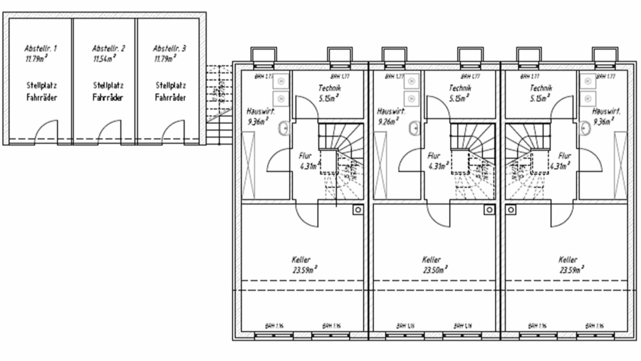
Im Untergeschoss des Hauses befinden sich der ca. 23,50 m² große Hobbyraum, der ca. 5,15 m² große Technikraum und der ca. 9,26 m² große Hauswirtschaftsraum.
Das Gebäude wird mittels Fernwärme der Bayernwerk Natur GmbH versorgt.
Die Lichtverhältnisse in allen Wohnräumen werden aufgrund großer Glastürelemente und großer Fenster ideal sein.
Zwei KFZ-Stellplätze und ein ca. 11,54 m² großer Abstellraum komplettieren dieses einzigartige Angebot.
Weitere Infos oder Details bitten wir in einem persönlichen Gespräch mit uns abzuklären.
Gerne können Sie diese Immobilie vorab im Internet auf unserer Homepage www.myimmowert.com unter Angabe der Objekt-ID: 16019 besichtigen. Für einen persönlichen Einzelbesichtigungstermin stehen wir Ihnen selbstverständlich sehr gerne zur Verfügung.
Herzliche Grüße Ihr Team von der myimmowert
Grunddaten
Flächenangaben
Merkmale und Ausstattung
Kosten
Lage
Die Immobilie befindet sich im Zentrum in Markt Schwaben im Landkreis Ebersberg. Hier wird in erster Linie von einer naturnahen und familienfreundlichen Wohnlage umgeben von Wiesen und Feldern profitiert. Zudem befindet sich das Zentrum der Landeshauptstadt München nur etwa 25 Minuten Autofahrt entfernt, sodass spontane Einkaufstrips sowie das Pendeln zum Arbeitsplatz problemlos möglich sind.
Markt Schwaben sowie die umliegenden Weiher und Ortsteile stellen ihren Bewohnern sämtliche im Alltag benötigte Infrastruktur zur Verfügung. So befinden sich in der Stadtmitte von Markt Schwaben zahlreiche Gaststätten, Geschäfte, Bäckereien und mehrere Supermärkte. Im Falle eines medizinischen Notfalls stehen Ihnen zahlreiche Arztpraxen unterschiedlichster Fachrichtungen sowie 2 Apotheken zur Verfügung.
Schulen in Markt Schwaben: Grundschule, Mittelschule, Realschule, Gymnasium, Musikschule und Volkshochschule.
In Markt Schwaben gibt es 5 Kinderkrippen, 8 Kindergärten und 4 Kinderhorte.
Auf den öffentlichen Nahverkehr kann problemlos über die nur etwa 6 Gehminuten entfernte Bus- und S-Bahn-Haltestelle Markt Schwaben zugegriffen werden. Hier verkehren die Buslinien 507, 568 und 568V sowie die S-Bahnlinien S2 (Erding – München – Altomünster) und der Regionalexpress, die gemeinsam eine schnelle Verbindung in die umliegenden Ortschaften bis nach München (ca. 15 min) anbieten. Mit dem Pkw fahren Sie bereits nach wenigen Fahrminuten auf die A94 auf und werden so schnell und unkompliziert an das deutsche Fernstraßennetz angebunden.
85570 Markt Schwaben, Bayern, Deutschland. Die dargestellte Position der Immobilie ist nur eine ungefähre Angabe.
Sonstige Informationen
Wichtige Hinweis & Besichtigungstermine:
Bitte haben Sie Verständnis, dass wir nur Anfragen mit angegebener Telefonnummer und vollständiger Adresse bearbeiten werden!
Erstbesichtigungstermine führen wir ausschließlich von Montag bis Freitag durch!
Aus Haftungsgründen sprechen wir bei den Besichtigungsterminen ausschließlich deutsch, sollten Sie der deutschen Sprache nicht ausreichend mächtig sein, bitten wir Sie Ihren Dolmetscher oder Übersetzer zum Besichtigungstermin mitzubringen.
Unser umfangreiches Immobilienangebot und unsere Öffnungszeiten finden Sie auf unserer Homepage www.myimmowert.com
Dies stellt nur eine Kurzbeschreibung des Objektes dar. Gerne senden wir Ihnen auf Anfrage ein ausführliches Exposé mit Grundrissplänen und Fotos zu.
Sämtliche Fotos, Texte und grafischen Darstellungen sind Eigentum der myimmowert GmbH & Co. KG und dürfen nicht von Dritten verwendet oder weitergegeben werden.









