Lichtdurchflutete 2-Zimmer-Gartenwohnung in sehr ruhiger Wohnlage im Herzen von Aschheim
Zuhause im Herzen von Aschheim!
Wer die zentrale Lage in grüner Umgebung genießen und dennoch schnell in die Münchner Innenstadt gelangen will, liegt mit einer Eigentumswohnung im Zentrum von Aschheim genau richtig.
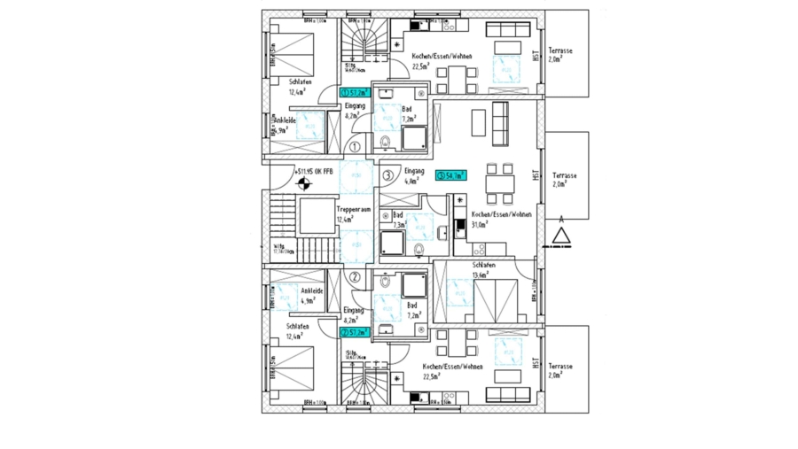
Das modern gestaltete Mehrfamilienhaus mit 8 Eigentumswohnungen, 8 Außenstellplätzen und 2 Besucherparkplätzen wird in massiver und bester Ziegelbauweise erstellt.
Grunddaten:
- 2-Zimmer-Eigentumswohnungen
- Wohnungen 1 + 2 + 3 sind im Erdgeschoss barrierefrei
- Wohnungsgrößen von ca. 60,20 m² bis ca. 70,20 m²
- Personenaufzug über alle Etagen
- Ideale Südausrichtung
- 36,5 cm Ziegelbauweise
- KFW-Effizienzklasse 55
- Energieträger Fernwärme AFK-Geothermie
- Dezentrale Lüftungsgeräte mit Wärmerückgewinnung
- Videogegensprechanlage
- Fenster Kunststoff-Alu
- Parkettböden in allen Wohnräumen
- Weichwasserenthärtungsanlage
- Fußbodenheizung
- Handtuchheizkörper in den Bädern
- Elektrische Rollläden
- Gemeinschaftlicher Wasch- und Trockenraum im Untergeschoss
- Oberirdische Fahrradstellplätze
- 2 Besucherparkplätze
- EG-Wohnungen mit Privatgärten und Terrassen
Um für eine klimaneutrale Zukunft und kommende gesetzliche Anforderungen vorbereitet zu sein, wird das gesamte Gebäude mit modernster Wärmetechnik ausgestattet und erfüllt den KFW 55 Standard. Die energetische Ausstattung mit effektiver Gebäudeisolierung und einer effizienten Zentralheizung mit Fernwärme sorgen für gutes Klima und niedrige Energiekosten.
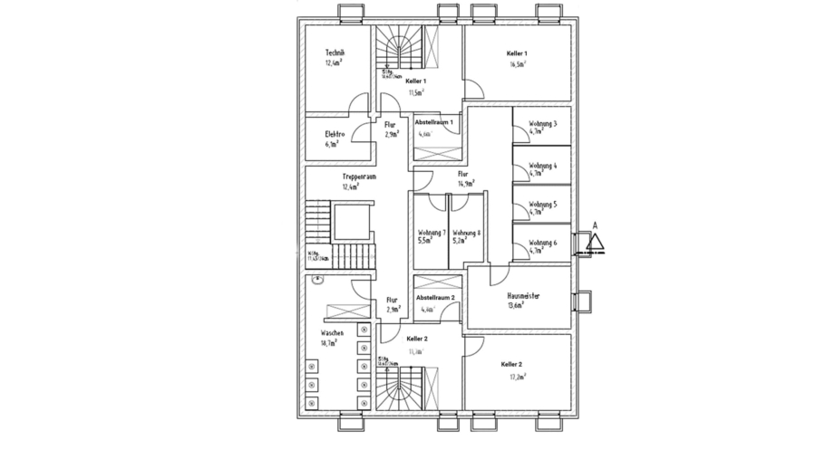
Zu dieser durchdacht gestalteten und barrierefreien 2-Zimmer-Gartenwohnung (Wohnung 3) gehört ein oberirdischer KFZ-Stellplatz und ein ca. 4,70 m² großer Kellerraum im Untergeschoss.
In einem persönlichen Gespräch erörtern wir all Ihre Fragen, die Ausstattungsmerkmale und weiteren Details zu Ihrer neuen Immobilie.
Wir freuen uns auf Ihren Anruf! Gern können Sie Ihr neues Zuhause auf unserer Homepage www.myimmowert.com unter Angabe der Objekt-ID: 12025 ausführlich besichtigen. Für einen persönlichen Einzelbesichtigungstermin vor Ort stehen wir Ihnen selbstverständlich sehr gerne zur Verfügung.
Herzliche Grüße Ihr Team von myimmowert
Grunddaten
Flächenangaben
Merkmale und Ausstattung
Kosten
Lage
Unser Neubauvorhaben befindet sich am östlichen Stadtrand der Landeshauptstadt München in der beliebten Gemeinde Aschheim. Aschheim hat einen charmanten Dorfcharakter und ist durch seine optimale Anbindung an die Landeshauptstadt München und der Vielzahl an Einkaufsmöglichkeiten mit einer hervorragenden Infrastruktur ausgestattet.
Einkaufsmöglichkeiten des täglichen Bedarfs befinden sich in unmittelbarer Umgebung. Ärzte, Kindergärten, sowie eine Real - und eine Grundschule sind direkt im Ort vorhanden. Ein Gymnasium finden Sie in der benachbarten Gemeinde Kirchheim.
Die Autobahnen A99 und A94 sind binnen 3 Minuten mit dem PKW zu erreichen. Die nächste Bushaltestelle ist in wenigen Minuten zu Fuß zu erreichen. Mit dem Bus gelangt man in ca. 13 Fahrminuten zum U-Bahnhof Messestadt-West mit Anbindung an die (U2). Die S-Bahnstation Riem (S2) ist mit dem Bus in ca. 8 Fahrminuten zu erreichen. Mit der S-Bahn fahren Sie ab der S-Bahnstation München Riem (S2) in rund 15 Minuten in die Münchner Innenstadt (Marienplatz/Stachus).
Das Sport- und Freizeitangebot lässt keine Wünsche offen: Es gibt einen 18-Loch-Golfpark Aschheim und den „Green Hill“ 9-Loch-Kurzplatz, Sportanlagen für Fußball und Leichtathletik, Tennis, Eisstockbahnen, eine Reitanlage, eine Sporthalle, eine Beachvolleyball-Anlage sowie eine Wasserskianlage und mehrere Badeseen.
- Kindergarten: In wenigen Gehminuten zu erreichen.
85609 Aschheim, Bayern, Deutschland. Die dargestellte Position der Immobilie ist nur eine ungefähre Angabe.
Sonstige Informationen
Wichtige Hinweis & Besichtigungstermine:
Bitte haben Sie Verständnis, dass wir nur Anfragen mit angegebener Telefonnummer und vollständiger Adresse bearbeiten werden!
Erstbesichtigungstermine führen wir ausschließlich von Montag bis Freitag durch!
Aus Haftungsgründen sprechen wir bei den Besichtigungsterminen ausschließlich deutsch, sollten Sie der deutschen Sprache nicht ausreichend mächtig sein, bitten wir Sie Ihren Dolmetscher oder Übersetzer zum Besichtigungstermin mitzubringen.
Unser umfangreiches Immobilienangebot und unsere Öffnungszeiten finden Sie auf unserer Homepage www.myimmowert.com
Dies stellt nur eine Kurzbeschreibung des Objektes dar. Gerne senden wir Ihnen auf Anfrage ein ausführliches Exposé mit Grundrissplänen und Fotos zu.
Sämtliche Fotos, Texte und grafischen Darstellungen sind Eigentum der myimmowert GmbH & Co. KG und dürfen nicht von Dritten verwendet oder weitergegeben werden.









