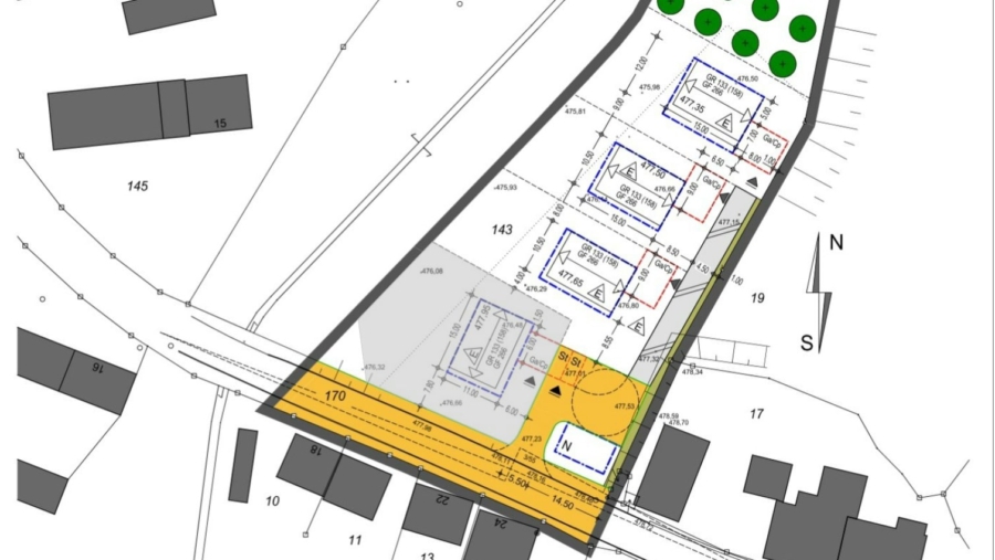
Bautraum verwirklichen? Exklusives Baugrundstück für ein Einfamilienhaus in 84439 Hofstarring
Das von uns exklusiv angebotene Baugrundstück ist voll erschlossen und Teil eines kleinen und neu entstehenden Wohngebietes im Herzen der kleinen Ortschaft Hofstarring-Steinkirchen. Die Bebauung wird mit vier Einfamilienhäusern erfolgen. Das Grundstück ist ideal nach Süd-/Westen ausgerichtet und verfügt über eine Gesamtgrundstücksgröße von ca. 914,53 m². Der rechteckige Grundstückszuschnitt ist als optimal zu bezeichnen. Für eine Bebauung ist der Bebauungsplan „Hofstarring Mitte“ gemäß § 13b Baugesetzbuch (BauGB) maßgebend, den wir Ihnen auf Wunsch sehr gerne zusenden. Die wesentlichen Punkte dieser Bebauung sind: Maße des Bauraums 15,00 m x 11,00 m; Anzahl der Vollgeschosse 2; GR 133 (158), maximale zulässige Grundfläche je Bauraum, der Klammerwert steht für Hauptgebäude einschließlich Terrassen und Balkone; GF 266, maximal zulässige Geschossfläche, bezogen auf die Außenmaße der Gebäude in allen Vollgeschossen; zulässige Wandhöhe 6,00 m; Dachform und Neigung - gleichseitige Satteldächer mit einer Neigung von 15 bis 25 Grad; vorgeschriebene Hauptfirstrichtung Süd-Nord; geschätzte Wohnfläche ca. 200,00 m² ohne Terrassen und Balkone; Doppelgarage oder Doppelcarport möglich. Für Garagen, Carports und Nebengebäude sind ausschließlich begrünte Flachdächer zulässig. Die Errichtung von freistehenden Gartengerätehäuschen mit einer Größe von 6,00 m² ist zulässig. Eine mögliche Bebauung des Grundstückes wurde bereits durch unseren Architekten geprüft und visualisiert. Nähere Informationen oder Details müssten in einem persönlichen Gespräch mit uns abgeklärt werden. Das Grundstück ist ohne Altbestand und sofort zu bebauen.
Hinweis:
Die Bauarbeiten für die komplette Erschließung sowie die Bauarbeiten für die gesamte Privatstraße werden zum 30.09.2021 abgeschlossen sein.
Nähere Informationen zu diesem Baugrundstück erhalten Sie auf unserer Homepage www.myimmowert.com unter Angabe der Objekt-ID: 20009.
Für einen persönlichen Einzelbesichtigungstermin vor Ort stehen wir Ihnen selbstverständlich sehr gerne zur Verfügung.
Wir freuen uns Sie kennenzulernen.
Grunddaten
Flächenangaben
Ausstattung
- Geschossfläche (GF): 266,00 m²
- Grundfläche (GR): 133,00 m² (158,00 m²)
- Geschossflächenzahl (GFZ): 0,27
- Grundflächenzahl (GRZ): 0,12
- Mögliche Wohnfläche: ca. 200,00 m² (ohne Terrassen und Balkone)
- Anzahl Vollgeschosse: 2
- Bebauung: Rechtskräftiger Bebauungsplan "Hofstarring Mitte"
- Wohneinheiten: 1
- Erschließung: voll erschlossen
- Altbestand: nicht vorhanden
Lage
Die Grundstücke befinden sich in ruhiger und idyllischer Lage von Hofstarring. Hofstarring ist ein Ort in der Gemeinde Steinkirchen. Steinkirchen liegt im östlichen Landkreis Erding, in mitten des hügeligen, waldreichen Erdinger Holzlandes, auch tertiäres Hügelland bzw. Isar-Inn-Hügelland genannt. Die Gemeinde liegt etwa 17 km nordwestlich von Dorfen, 26 km südlich von Landshut sowie jeweils 17 km von Moosburg an der Isar und der Kreisstadt Erding entfernt. Den Flughafen München erreicht man in ca. 23 Fahrminuten mit dem PKW. Im Gemeindebereich Steinkirchen gibt es einen Kindergarten. Steinkirchen ist Mitglied im Schulverband Holzland mit zwei Grundschulen in Schröding und Hohenpolding. Weiterführende Schulen befinden sich in Taufkirchen (Vils) (Haupt- und Realschule), sowie in Dorfen (Förderschule, Hauptschule mit M-Zug, Gymnasium).
Entfernungen:
ca. 18 Minuten nach Erding
ca. 25 Minuten nach Landshut
ca. 23 Minuten zum Flughafen München
ca. 20 Minuten nach Dorfen
ca. 6 Minuten nach Taufkirchen (Vils)
Alle Geschäfte des täglichen Bedarfs befinden sich in der Gemeinde Steinkirchen. Die Freizeitgestaltungsmöglichkeiten lassen keine Wünsche offen.
84439 Steinkirchen, Bayern, Deutschland. Die dargestellte Position der Immobilie ist nur eine ungefähre Angabe.
Sonstige Informationen
Der Eigentümer hat uns exklusiv beauftragt, den Verkauf seiner Grundstücke zu koordinieren und zu vermitteln. Auf Wunsch des Eigentümers und aus formellen Gründen bitten wir ausdrücklich, von Direktkontakten abzusehen und Besichtigungstermine sowie Informationsgespräche ausschließlich über unser Haus zu vereinbaren. Die Angaben zum Objekt erfolgen im Namen unseres Auftraggebers und dienen einer ersten Information. Für die Richtigkeit und Vollständigkeit wird keine Haftung übernommen.
Bitte haben Sie Verständnis, dass wir nur Anfragen mit vollständig angegebener Adresse und Telefonnummer bearbeiten können.
Sämtliche Fotos, grafische Darstellungen und Texte sind Eigentum der Firma myimmowert und dürfen nicht von Dritten verwendet, weitergegeben oder veräußert werden.
Für Rückfragen und zur Vereinbarung von Besichtigungsterminen stehen wir Ihnen jederzeit sehr gerne zur Verfügung.
INFORMATIONEN ZU CORONA / COVID-19
Selbstverständlich ermöglichen wir Ihnen gerne einen Vor-Ort-Besichtigungstermin. Besichtigungen werden selbstverständlich unter Berücksichtigung von Hygiene- und Abstandsregeln etc. durchgeführt. Wir bitten Sie, Ihre Maske selbst mitzubringen und diese beim Termin zu tragen. Auch vor Corona waren für uns individuelle Einzelbesichtigungstermine die Regel.









